| 所在地 | 神奈川県高座郡寒川町一之宮2丁目 |
|---|---|
| 交通 | |
| 価格 | 3480万円~3780万円 月々のお支払い目安
|

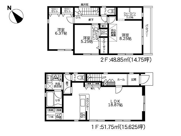
| 間取り | 3LDK~4LDK |
|---|---|
| 土地面積 | 109.84m2~139.39m2 |
| 建物面積 | 100.19m2~101.02m2 |
| 建物階 | 木造 2階建 |
| 完成時期 |
|

























先着順受付中/販売中
| 販売戸数 | 1戸 | 最多価格帯 | 3400万円台1戸 3700万円台1戸 3500万円台1戸 他 |
|---|---|---|---|
| 販売価格 |
3480万円~3780万円 月々のお支払い目安
|
||
| 土地面積 | 109.84m2~139.39m2 | ||
| 建物面積 | 100.19m2~101.02m2 | ||
| 建物状況 | - | 建物現況 | 新規分譲 |
| 土地状況 | - | 最適用途 | - |
| 建築条件備考 | - | 構造・工法 | - |
| 間取り | 3LDK~4LDK | 建物階 | 木造 2階建 |
| 建ぺい率 / 容積率 | 建蔽率60% 容積率200% | ||
| 接道 |
|
||
| 駐車場・車庫 |
|
完成時期 |
|
| 引渡し可能時期 |
|
||
| その他諸費用 | - | ||
| こだわり条件 |
|
||
| 備考 |
|
||
| 関連サイト | - | ||
| 所在地 | 神奈川県高座郡寒川町一之宮2丁目 | ||
|---|---|---|---|
| 交通 |
|
||
| 土地の権利 | 所有権 | ||
| 総戸数 | 3戸 | ||
| 私道負担 | - | 用途地域 | 第一種住居地域 |
| 地目 | 宅地 | 施工会社 | - |
| 情報掲載開始日 | 2026年2月26日 | 情報更新日 | 2026年2月26日 |
| 取引条件有効期限 | 2026年3月1日 | 次回更新予定日 | 2026年3月12日 |
頭金、借入期間、金利から毎月の住宅ローンお支払い額の目安を試算します。ご希望の条件に変更してご利用ください。
物件価格の初期値は最低値を設定しております。実際にローン契約をする際は、詳細を不動産会社にご確認ください。
この物件のアピールポイント
◆TVコマーシャル・youtube広告放映開始 ◆2024年グループ成約数2416件の実績 !◆MEグループ提携住宅ローン50行以上! ◆本日ご内見可能です!お客様に安心して楽しくご見学いただくために、無料で自宅送迎サービスも行ってます!お気軽にお申しつけ下さい♪ ◆見学後のご不安の解消に役立つ、物件ごとの周辺環境がわかる物件調査レポートをご希望の方に差し上げております!お気軽にご相談下さい!
この物件の価格
3480万円~3780万円