東松山市松葉町 新築分譲住宅 全2棟 1号棟

新築仲介一戸建て
所在地 埼玉県東松山市松葉町3丁目
交通
  • 東武東上線「東松山」駅まで 徒歩 16分
  • 東武東上線「森林公園」駅まで 徒歩 24分
  • 価格 3,490万円
    • 物件情報
    • 地図・周辺情報
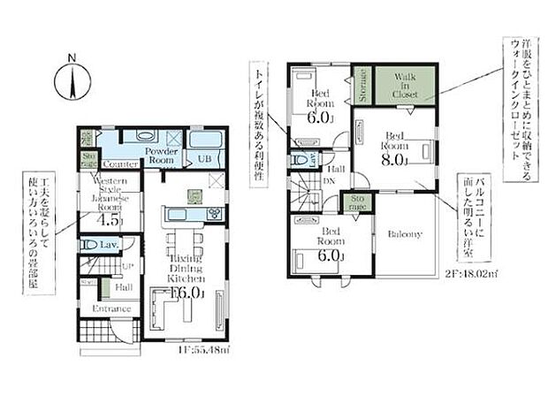
    • 間取り 4LDK
      土地面積 154.19m2(公簿)
      建物面積 103.50m2
      建物階 地上2階
      完成時期
      • 2026年 6月
    • 【外観完成予想図】メールでの資料請求のみでも大歓迎!まずはお気軽に資料請求から!※イメージとは異なる場合もございます。
    • 子育て家族にもオススメの4LDK。リビングに隣接した和室は客間やキッズスペースなど多彩に活用できます。
    • 【駐車場3台以上】親戚やお友達を呼ぶ際には便利ですね!将来お子様が免許取得時に、車をもう一台考える際も、駐車場の心配がありません!
    • 【シャンプードレッサー】引き出して使えるシャワー水栓で、小さなお子様の手洗いや、忙しい朝の洗顔・整髪もラクラク。
    • 【バスの広さ1坪以上】お子様と一緒でもゆとりの1坪タイプのバスルーム。1日の疲れを癒してくれるバスタイムを有意義に。大人の方もゆったりと入浴できます。
    • 【浴室に窓】窓付きの浴室で、換気と自然な明るさを確保。湿気がこもりにくく、カビ対策にも!清潔で快適なバスタイムをお楽しみいただけます。
    • 【オートバス】ボタンひとつでお湯張り完了!便利なオートバス機能付き。自動でお湯張り・追い焚き・保温までこなしてくれる便利な機能です。
    • 【浴室暖房乾燥機】雨の日のお洗濯にも大活躍な浴室暖房乾燥機付き。入浴前に浴室を温めておけば、ヒートショック対策としてもお使いできます!
    • 【温水洗浄便座】快適性と衛生面を兼ね備えたウォシュレット機能付きトイレ!お手入れもしやすく、清潔な状態を保ちやすいのも魅力です。
    • 【トイレ2か所】トイレが2か所にあるので、朝の忙しい時間帯は待たずに使用することができ、万が一の故障やトラブル時でも慌てずにすみます。
    • 【クローゼット完備】衣類や日用品が片付き、お部屋を広々と使えるのが嬉しいポイント。収納家具を置かずに済む分、お好みのレイアウトが楽しめます。
    • 【ウォークインクローゼット】家族の衣類をまとめて収納できるWIC。大きな生活用品までスッキリ収納でき、住空間を広く使うことができます。
    • 【シューズインクローゼット】家族の靴はもちろん、アウトドア・スポーツ用品など、室内には持ち込みづらい土汚れや外で使うものなどを収納できます。
    • 業務スーパー東松山店まで540m
    • ヤオコー東松山シルピア店まで551m
    • マミーマート松山町店まで1052m
    • ファミリーマート 東松山松山町店まで891m
    • ドラッグストアセキ松葉町店まで658m
    • 第二仲よし保育園まで823m
    • 東松山市立松山第一小学校まで550m
    • 東松山市立松山中学校まで550m
    • 東松山駅(東武 東上本線)まで1280m
    • 【LDK15帖以上】大切な家族が集まるからこそこだわりたい場所。楽しい食事と会話が始まる場所を大切にした素敵な場所となっています。
    • 【システムキッチン】毎日の家事を快適にしてくれる、機能的なシステムキッチン。たっぷり収納付きで、調理器具や食器もすっきり整理。作業スペースも広く、お料理がもっと楽しくなります。
    • 【カウンターキッチン】ご家族の様子を見守りながら料理ができるカウンターキッチン。リビング・ダイニングとのつながりが生まれ、会話も弾みます。小さなお子様がいるご家庭にもぴったりです!
    • 【3口コンロ】時短にもなる3口コンロを採用!焼く・蒸す・煮るの工程を同時進行で進めることができ、凝った料理もまとめて作ることが出来ます。
    • 【浄水器付き】蛇口をひねれば、安全で美味しいお水がいつでも使える浄水器付き。浄水されたお水はお料理をグッと美味しく、体に良いものにしてくれます。
    • 【独立洗面台】トイレや浴室とは別になっているので、床が水で濡れたり鏡が曇ったりすることがなく、清潔な状態を保ちやすくなります。
    • 商業施設や教育機関が徒歩圏内に充実!子育て家族にもオススメの住環境です。
    • 【TVインターホン】来訪者の様子を室内TVモニターでチェック対応したくないセールスを断りやすく、お子様に留守番をさせるときも安心!不在時の来訪者を録画でき、犯罪抑止効果も期待できます

    住みやすさ

    東松山の住みやすさの採点分布

             
    ココが住みやすい!
    • いろいろなお店があり市内で買い物を済ますことができる。 地元グルメの焼き鳥は豚のカシラ肉を辛味噌で食べるがとても美味しく、…
    • 駅前の商店街に、飲食店、特に学生がいけるような安い定食カレー屋などが多くたっており、部活帰り等に食事をとるのに困らなかった
    • ご近所さんとの距離が近いです。猫好きが多いので旅行のときにお隣さんに預けられました。とても助かります。
    ※住みやすさに関する評点は、単純平均ではなく当社独自の集計方法を加え算出しています。

    販売概要

    販売戸数 1戸 最多価格帯 -
    販売価格 3,490万円
    土地面積 154.19m2(公簿)
    建物面積 103.50m2
    建物状況 新築 建物現況 未完成
    土地状況 - 最適用途 -
    建築条件備考 - 構造・工法
    • 木造
    間取り 4LDK
    間取り内訳:リビングダイニングキッチン 16帖(1階)・和室 4.5畳(1階)・洋室 6帖(2階)・洋室 6帖(2階)・洋室 8帖(2階)
    建物階 地上2階
    建ぺい率 / 容積率 60% / 200%
    接道
    接道状況:
    二方(角地)
    接道詳細:
    • 北 (公道 幅員 5.20m 接面 -)
    • 西 (私道 幅員 4.00m 接面 -)
    駐車場・車庫
    • 4台
    • 駐車場料金:無料
    完成時期
    • 2026年 6月
    引渡し可能時期
    • 2026年7月下旬 期日指定
    その他諸費用 -
    こだわり条件
    • コンロ三口
    • 床下収納
    • ウォークインクローゼット
    • TVモニタ付インターホン
    • バリアフリー
    • カウンターキッチン
    • 浴室乾燥機
    • 全居室収納
    • シューズインクローゼット
    • 照明器具付
    • オートバス
    • 設計住宅性能評価付き
    • 建設住宅性能評価書(新築時)
    • BELS/省エネ基準適合認定建築物
    • 角地
    • 駐車場2台以上
    • 小学校まで1km以内
    備考
    • 物件種目:戸建
    • 主たる設備概要:-
    • 上水道:公営
    • 下水道:本下水
    • ガス・オール電化:プロパンガス
    • 国土法:不要
    • 法令上の制限その他:景観法、法第22条区域 土地区画整理事業計画区域 宅地造成等工事規制区域 農地法 建ぺい率:角地緩和 私道持分:25.14平米、1.98平米有
    • 建築確認番号:第25UDI1W建12053号
    • 都市計画:市街化区域
    • 主要採光面:南
    • 最寄り小学校名:松山第一小学校
    • 最寄り小学校までの距離:550m
    • 最寄り中学校名:松山中学校
    • 最寄り中学校までの距離:550m
    • その他施設名:第二仲よし保育園
    • その他施設までの距離:823m
    • 近隣のスーパーマーケットまでの距離:540m
    • 近隣のドラッグストアまでの距離:658m
    • 近隣のコンビニまでの距離:891m
    • 備考欄:[物件コード]143601-9101、住宅ローンのご相談もお任せください!諸費用や月々のお支払等様々な角度から丁寧にご説明!提携銀行による住宅ローン金利の優遇も利用可能!お気軽にお問合せください。弊社斡旋にて住宅ローンご利用の方に「エアコン」又は「新築設備保証10年(住まいる保証21)」をプレゼント!歓迎中国籍!有中国籍員工中文対応!代理貸款
    関連サイト -

    全体概要

    所在地 埼玉県東松山市松葉町3丁目
    交通
    • 東武東上線「東松山」駅まで 徒歩 16分
    • 東武東上線「森林公園」駅まで 徒歩 24分
    土地の権利 所有権
    総戸数 -
    私道負担 - 用途地域 第一種住居地域
    地目 宅地 施工会社 -
    情報掲載開始日 2026年2月23日 情報更新日 2026年2月23日
    取引条件有効期限 2026年3月9日 次回更新予定日 -

    ローンシミュレーション

    頭金、借入期間、金利から毎月の住宅ローンお支払い額の目安を試算します。ご希望の条件に変更してご利用ください。

    物件価格の初期値は最低値を設定しております。実際にローン契約をする際は、詳細を不動産会社にご確認ください。

    万円
    万円
    %

    ※頭金や金利、借入期間によって支払う金額は変わります。

    ※物件購入時には、物件価格の他に諸費用がかかります。

    =
    月々のお支払い目安
    元金
    万円/月
    金利
    万円/月
    お支払い目安
    万円/月

    お問い合わせ

    ご覧いただいている物件の住宅ローンや実際にかかる諸費用、資金計画などのご相談ができます。

    不動産会社へのお問い合わせ

    (株)クレド

    この物件のアピールポイント

    ■敷地45坪超!駐車場4台可■商業施設や教育機関が近隣に充実■南向きLDK16帖×対面式キッチン

    この物件の価格

    3,490万円

    • 会社名:センチュリー21クレド
    • 住所:埼玉県坂戸市南町3番3グランドヒルズ福徳壱番館101
    • 電話:0120-89-9010
    • 交通:東武東上線「坂戸」駅まで 徒歩 1分
    • 取引態様:媒介
    • 免許番号:埼玉県知事(4)第20764号
    • 不動産団体名:(公社)全日本不動産協会、(公社)首都圏不動産公正取引協議会
    • 保証協会:(公社)不動産保証協会
    • 売主:-
    • 売主免許番号:-
    • 関連サイト:-

    お電話でのお問い合わせはこちら(取り扱い不動産会社に直接つながります)

    電話をかける(携帯電話・PHSでも可)

    1電話番号を入力する

    0037-634-95326

    お問い合わせ先

    (株)クレド

    2音声案内に従い、以下の番号を入力

    お問い合わせ番号 22535-3195

    不動産会社につながります

    不動産会社のスタッフと
    直接電話で話せます

    店舗スタッフ
    • お客様の電話番号は不動産会社に通知されません。
    • 光IP電話、及びIP電話からはご利用になれません。
    • 定休日や営業時間外にてお電話がつながらない場合は、お問い合わせフォームよりお問い合わせください。
    • 携帯電話からお問合せいただいた方には、ショートメッセージ(SMS)またはLINE通知メッセージによるお問い合わせ内容に関する通知を株式会社LIFULLよりお届けする場合があり、お客様の電話番号は株式会社LIFULLで一定期間保管されます。
    • 株式会社LIFULLの個人情報の取扱い方針に同意のうえ、お電話ください。
    • オーナー様・不動産会社様・現在ご入居中のお客様など、住まい探し以外のご相談はこちらからお問い合わせください。

    他の物件も見てみる

    最近見た物件
    • 外観
    • 間取り

    • 完成後1年を経過している未入居物件が掲載されている場合があります。
    • 販売住戸が複数の物件は、全ての住戸に該当しない項目もあります。各問い合わせ先にご確認ください。
    • 「建築条件付き土地」とは、一定期間内(概ね3ヶ月程度)に特定の建設会社と建築請負契約を結ぶことを 条件にしている宅地のことです。
    • 建物の内容は、土地購入者の自由意思により決定可能で、土地売買契約後、 建築請負会社と購入した土地に建設する建物について協議することになります。
    • 期間内に建築請負契約が成立しなければ売買契約は白紙となり、支払済みの金銭はすべて返却されます。
    • 「建築条件付き土地」の価格には、建物価格は含まれません。
    • 「建築条件付き土地」の「建物プラン例」は、土地購入者の設計プランの一例であり、プランの採用可否は任意です。
    • 「土地(建築条件なし)」の「建物プラン例」に関して、そのプラン例は特定の建築請負会社によるもので、当該建築請負会社以外で建てた場合、同様のものが同価格で建てられるとは限りません。また、建築請負会社を特定するものではありません。
    • 消費税および地方消費税の対象となる場合は税込み価格が表示されています。
    • 物件の写真やイラスト、CGなどは実際と異なる場合があります。
    • 市区町村の合併などにより、地図が表示されない場合があります。ご了承ください。
    • お客様が入力する個人情報を含むお問い合わせデータは、LIFULL HOME'Sを経由して当該物件情報の取扱会社に転送されます。
    • 不動産購入の検討、契約にあたってはお客様ご自身が情報を確認し、各会社より十分な説明を受け判断してください。
    • 本ページの掲載内容は変更される場合があります。あらかじめご了承ください。
    ページトップへ