小金井市東町1丁目 新築分譲住宅 全1棟

新築仲介一戸建て
所在地 東京都小金井市東町1
交通
  • JR中央線「東小金井」駅 徒歩18分
  • 西武多摩川線「新小金井」駅 徒歩9分
  • 価格 4980万円
    資料請求する無料 見学予約する無料

    ※LIFULL HOME'Sの資料請求ページに移動します

    お気に入りに追加
    • 物件情報
    • 地図・周辺情報
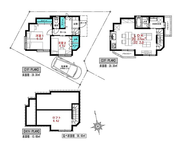
    • 間取り 2LDK+ロフト
      土地面積 70.82m2
      建物面積 56.60m2
      建物階 木造2階建
      完成時期
      • 2026年4月予定
    • 【完成予想図】JR中央線「東小金井」駅徒歩18分、西武多摩川線「新小金井」駅徒歩9分!2026年4月完成予定・同施工のモデルハウスご案内可能です!
    • 【現地外観】12.2帖のLDK×収納付きの居室が2部屋!6.4帖の専用階段付ロフト!高級感あるタイル調フローリングのLDK!設計性能評価取得済で断熱性や耐震性に優れた安心の邸宅です!
    • 【現地外観】周囲にはスーパーをはじめとした買い物施設も揃っています。住みやすさと利便性を兼ね備えた環境です。
    • 【現地外観】家の顔となる玄関は、格調高いデザイン性が求められます。玄関は、高級感と断熱性、防犯性に優れた玄関ドアを標準装備。
    • 【前面道路を含む現地写真】保育園、小学校、中学校など教育施設が徒歩圏内に点在。お子様を目の届く範囲で通学させることができ、家族に安心なロケーションです!
    • 【前面道路を含む現地写真】子育てにも嬉しい、緑豊かな自然が広がる閑静な住宅地、南向きの邸宅です。この機会に是非現地をご覧ください。
    • 完成予想図
    • 【食洗機】手洗いよりも経済的で家計に優しい「ビルトイン食洗機」が標準装備なのはママの強い味方ですね。
    • 【浴室暖房換気乾燥機】「浴室暖房乾燥機」は梅雨や花粉の時期、雨の日の洗濯物の乾燥に重宝します。寒い冬も入浴前の暖房運転で快適なバスタイムを♪
    • 【TVモニター付きインターホン】「TVモニター付きインターホン」は、玄関に行かなくても誰が来たのか確認でき、お子様のお留守番も安心です。
    • 【宅配ポスト】「宅配ポスト」がございますので不在時でも安心です!時間に拘束されないストレスフリーな生活を!
    • 【3口ガスコンロシステム】「3口ガスコンロシステム」はたくさんの料理が同時に作れて便利な上、凹凸が少ないフラットトップなのでお掃除も楽々です。
    • 【浄水器】「浄水器」をスリムに内蔵したハンドシャワー式の水栓金具です。シンクもスッキリ!
    • 【オートバスシステム】「オートバスシステム」は浴室のお湯張り、温度調整などを、キッチンなど浴室以外から操作が出来る便利なシステムです。
    • 【シャワー付き洗面化粧台】「シャワー付き洗面化粧台」は暮らしを快適にしてくれます。朝の身支度もスムーズに♪
    • 【ウォシュレット付トイレ】「温水清浄便座付きトイレ」は日々の生活を快適にしてくれます。毎日使う場所だからこそ、こだわりたいポイントですね。
    • 【リビング】南側採光を生かした明るいLDK!高級感あるタイル調フローリングを採用!陽光いっぱいの空間で家族団らんの時間も増えそうですね!
    • 【リビング】窓が多く、採光を取り込める面積が大きい事で明るく気持ちの良い空間となっております♪家族みんなが集まる場所がいつでも明るいのは嬉しいですね!
    • 【キッチン】直線的な動線で作業がしやすい壁付けキッチンを採用。空間を広々と活用いただけます。
    • 【浴室】一日の疲れを癒してくれる広々バスルーム♪雨の日のお洗濯にも大活躍な浴室暖房乾燥機付きです!
    • 【居室】シンプルな色調の居室は清潔感があり落ち着いた空間です。家具のコーディネイトも楽しめそうですね♪
    • 【ロフト】固定階段付きで安全!まるで3階建てのような使い心地の6.4帖のロフトは荷物の出し入れも楽々!
    • 小金井市立東小学校(約900m)
    • 小金井市立東中学校(約290m)
    • こむぎ保育園(約570m)
    • いなげや小金井東町店(約850m)
    • 武蔵野中央病院(約400m)
    • 武蔵野公園(約750m)
    • 間取り図(1号棟)
    • 全体区画図
    • 前面道路
    • 案内図
    • 現地外観
    • 現地外観

    住みやすさ

    東小金井の住みやすさの採点分布

             
    ココが住みやすい!
    • こじんまりとしていて落ち着いた感じのところ。小さなお店が点在して、散策が楽しい。学校や大学が多くあって、賑やかなところ。
    • とにかく治安が良くて静かな上に、少し歩けば都内でも屈指の巨大公園である小金井公園がある。 小中高大全てがあるので子供も多く…
    • 東京の中では人が多すぎず、暮らすには居心地のいい地域だと思います。 都会らしい雰囲気に馴染みがない人に特におすすめです。 …
    ※住みやすさに関する評点は、単純平均ではなく当社独自の集計方法を加え算出しています。
    お気に入りに追加 この物件の資料請求無料 見学予約する無料

    ※LIFULL HOME'Sの資料請求ページに移動します

    販売スケジュール

    販売中

    イベント情報

    \\【☆弊社なら「仲介手数料3%+6万円の消費税が「0円」☆】//

    イベント概要
    開催日時 2025年12月25日~2026年12月27日
    申込期間 2025年12月25日~2026年12月27日
    開催場所 東京都三鷹市野崎1-8-16シンフォニー三鷹1階
    交通 JR中央線「三鷹」駅 バス10分 徒歩1分

    【☆弊社なら「仲介手数料3%+6万円の消費税が「0円」☆】対象物件です。少しでも本物件をお得に購入されたい方はお気軽にお問い合わせください♪

    見学予約する 無料

    ※LIFULL HOME'Sの資料請求ページに移動します

    販売概要

    販売戸数 1戸 最多価格帯 -
    販売価格 4980万円
    土地面積 70.82m2
    建物面積 56.60m2
    建物状況 - 建物現況 新規分譲
    土地状況 - 最適用途 -
    建築条件備考 - 構造・工法 -
    間取り 2LDK+ロフト 建物階 木造2階建
    建ぺい率 / 容積率 建ぺい率40% 容積率80%
    接道
    南東側4.0m 法43条ただし書き道路
    駐車場・車庫
    • 1台(車種による)
    完成時期
    • 2026年4月予定
    引渡し可能時期
    • 相談
    その他諸費用 -
    こだわり条件
    • 瑕疵担保付き
    • 仲介手数料不要
    • 見学可能
    • 浴室乾燥機
    • 浴室暖房
    • 食器洗い乾燥機
    • TVモニタ付インターホン
    • 低層住宅地
    • 設計住宅性能評価付き
    • 敷地延長・変形地
    • オンライン相談可
    • 駐車場あり
    備考
    • 物件種目:戸建
    • 主たる設備概要:東京電力・都市ガス・公営水道・本下水
    • 国土法:届出不要
    • 建築確認番号:25ABNT-01-0263
    • 都市計画:市街化区域
    • 備考欄:\\【☆弊社なら「仲介手数料3%+6万円の消費税が「0円」☆】少しでも本物件をお得に購入されたい方はお気軽にお問い合わせください♪

      ・住宅ローン相談随時受付中。 住宅購入に関わる全てのご不安解消します。・気になる物件をお気軽にご覧ください。 ご自宅まで送迎させて頂きます。・お子様とご一緒でも安心。 たのしい、たのしいキッズスペースを用意しております。・その他にも、特典多数用意しております。 詳細に付きましては、お電話下さい。
    関連サイト -

    全体概要

    所在地 東京都小金井市東町1
    交通
    • JR中央線「東小金井」駅 徒歩18分
    • 西武多摩川線「新小金井」駅 徒歩9分
    • JR中央線「武蔵境」駅 徒歩30分
    土地の権利 所有権
    総戸数 1戸
    私道負担 - 用途地域 第一種低層住居専用地域
    地目 宅地 施工会社 -
    情報掲載開始日 2026年2月22日 情報更新日 2026年2月22日
    取引条件有効期限 2026年12月31日 次回更新予定日 2026年3月8日

    ローンシミュレーション

    頭金、借入期間、金利から毎月の住宅ローンお支払い額の目安を試算します。ご希望の条件に変更してご利用ください。

    物件価格の初期値は最低値を設定しております。実際にローン契約をする際は、詳細を不動産会社にご確認ください。

    万円
    万円
    %

    ※頭金や金利、借入期間によって支払う金額は変わります。

    ※物件購入時には、物件価格の他に諸費用がかかります。

    =
    月々のお支払い目安
    元金
    万円/月
    金利
    万円/月
    お支払い目安
    万円/月

    お問い合わせ

    ご覧いただいている物件の住宅ローンや実際にかかる諸費用、資金計画などのご相談ができます。

    不動産会社へのお問い合わせ

    Saikyo Estate株式会社 〒181-0014東京都三鷹市野崎1-8-16 シンフォニー三鷹

    この物件のアピールポイント

    ●【弊社なら仲介手数料「0円」】対象物件●JR中央線「東小金井」駅徒歩18分、西武多摩川線「新小金井」駅徒歩9分!2026年4月完成予定・同施工のモデルハウスご案内可能です! 12.2帖のLDK×収納付きの居室が2部屋!6.4帖の専用階段付ロフト!高級感あるタイル調フローリングのLDK!設計性能評価取得済で断熱性や耐震性に優れた安心の邸宅です! 保育園、小学校、中学校など教育施設が徒歩圏内に点在。お子様を目の届く範囲で通学させることができ、家族に安心なロケーションです!ぜひこの機会に直接現地をご覧ください。

    この物件の価格

    4980万円

    • 会社名:Saikyo Estate株式会社 
    • 住所:東京都三鷹市野崎1-8-16 シンフォニー三鷹1F
    • 電話:0422-26-5511
    • 取引態様:Saikyo Estate株式会社/仲介
    • 免許番号:東京都知事 (2) 第 104660 号
    • 不動産団体名:(公社)全日本不動産協会東京都本部
    • 売主:-
    • 売主免許番号:-
    • 関連サイト:-
    資料請求する無料 見学予約する無料

    ※LIFULL HOME'Sの資料請求ページに移動します

    他の物件も見てみる

    最近見た物件
    • 外観
    • 間取り

    • 完成後1年を経過している未入居物件が掲載されている場合があります。
    • 販売住戸が複数の物件は、全ての住戸に該当しない項目もあります。各問い合わせ先にご確認ください。
    • 「建築条件付き土地」とは、一定期間内(概ね3ヶ月程度)に特定の建設会社と建築請負契約を結ぶことを 条件にしている宅地のことです。
    • 建物の内容は、土地購入者の自由意思により決定可能で、土地売買契約後、 建築請負会社と購入した土地に建設する建物について協議することになります。
    • 期間内に建築請負契約が成立しなければ売買契約は白紙となり、支払済みの金銭はすべて返却されます。
    • 「建築条件付き土地」の価格には、建物価格は含まれません。
    • 「建築条件付き土地」の「建物プラン例」は、土地購入者の設計プランの一例であり、プランの採用可否は任意です。
    • 「土地(建築条件なし)」の「建物プラン例」に関して、そのプラン例は特定の建築請負会社によるもので、当該建築請負会社以外で建てた場合、同様のものが同価格で建てられるとは限りません。また、建築請負会社を特定するものではありません。
    • 消費税および地方消費税の対象となる場合は税込み価格が表示されています。
    • 物件の写真やイラスト、CGなどは実際と異なる場合があります。
    • 市区町村の合併などにより、地図が表示されない場合があります。ご了承ください。
    • お客様が入力する個人情報を含むお問い合わせデータは、LIFULL HOME'Sを経由して当該物件情報の取扱会社に転送されます。
    • 不動産購入の検討、契約にあたってはお客様ご自身が情報を確認し、各会社より十分な説明を受け判断してください。
    • 本ページの掲載内容は変更される場合があります。あらかじめご了承ください。
    ページトップへ