東白楽駅 徒歩6分 ◆4/27(月)~5/10(日)は見学会♪ ◆現地見学予約はフリーダイヤルまで!

新築仲介一戸建て
所在地 神奈川県横浜市神奈川区白幡西町
交通
  • 東急東横線「東白楽」駅 徒歩6分
  • JR京浜東北・根岸線「東神奈川」駅 徒歩11分
  • 価格 5780万円
    資料請求する無料 見学予約する無料

    ※LIFULL HOME'Sの資料請求ページに移動します

    お気に入りに追加
    • 物件情報
    • 地図・周辺情報
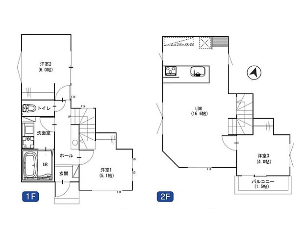
    • 間取り 3LDK
      土地面積 106.30m2
      建物面積 71.83m2
      建物階 木造 2階建 
      完成時期
      • 2026年03月
    • 【現地外観写真】東急東横線沿線の閑静な住宅街に位置したスタイリッシュな2階建てデザイナーズハウス、ペニンシュラキッチンを採用し解放感のあるLDKです。
    • ■リビング■本画像はAIがCGで家具作成しており、実際の現地に家具は設置されておりません。また、販売価格に家具、小物等は含まれておりません。
    • 【洗面台・洗面所】鏡の裏に収納棚を確保した三面鏡を採用。化粧品や歯ブラシなどを機能的に収納。また、三面鏡の本当の利点は三枚の鏡を合わせることで、頭の側面や背面が見れること。
    • 【浴室】ゆったり入れる一坪バス。足を伸ばして入れるサイズは一日の疲れを癒すのに嬉しい広さ。お子様と一緒の入浴でも充分な広さです。
    • 【トイレ】ウォシュレット、暖房便座機能付のトイレです。従来型に比べ節水効果があり、お手入れもしやすいので、家計も家事の負担も軽減してくれます。
    • 【キッチン】スライド収納付きのシステムキッチン。料理器具なども収納できて出し入れもスムーズ。収納量もたっぷりなので料理器具やストック調味料なども入れられる。
    • 【食器洗浄乾燥機】利用者が増えているのはメリットが多いから。時間の節約、手が荒れない、水道代の節約、高温度で洗うので油汚れもしっかり落とせる。まさに理想家電。
    • 【3口ガスコンロ】同時並行で調理しやすい3口コンロです。お料理を同時にすすめることができ、料理時間の短縮にもなります。
    • 【換気扇】ステンレスの鈍い輝きが高級感を醸し出す換気扇。従来タイプよりも換気効果に優れ、フィルター交換もお掃除も容易になりました。
    • 【キッチン】スタイリッシュな、浄水器一体型水栓です。水栓にシャワーホースと浄水器を内蔵し、カルキ臭など軽減。シャワーヘッドを引き出すことで、広いシンクのお手入れもラクラク。
    • 【TVモニター付インターホン】モニター付インターホンが標準仕様です。不安になりがちな防犯面。目で確認できるからあんしんです。
    • 【その他内観】階段部分には自然の光を取り込むことの出来る、窓を配置しており明るい空間!お掃除の際には空気の換気などにも便利です。
    • 【洗面台・洗面所】玄関横に設けられたセカンド洗面台は、帰宅後すぐの手洗いや、就寝前の身支度にも便利にご利用いただけます。
    • 【リビング】大切な家族が集まるからこそLDKにはこだわりたい。日当たりのよい広いLDKを、子供たちが元気に走り回っている姿を見た時「広い家にして良かった」と思う。
    • 【キッチン】システムキッチンと一体感あるカラーでまとまった、食器棚付です。高額な設備であることから建売には採用されないことが多いので、うれしい設備仕様です。
    • 【キッチン】対面式のペニンシュラキッチンですので、出来上がったお料理をカウンターに並べてお子様が運ぶなど、お手伝いの時間も増えそうですね。
    • 【リビング】家族だんらんのスペースとなるリビング。家具の配置がしやすい広さを確保しつつ、窓が多い設計は色々な角度から光が取り込めるこだわりの間取りです。
    • 東横線「東白楽」駅(約480m)
    • ビッグヨーサン東神奈川店(約1,000m)
    • 六角橋商店街(約900m)
    • 神奈川区役所(約1,200m)
    • 白幡地区センター(約800m)
    • 横浜白幡郵便局 (約700m)
    • ■ワークスペース■本画像はAIがCGで家具作成しており、実際の現地に家具は設置されておりません。また、販売価格に家具、小物等は含まれておりません。
    • ■玄関■本画像はAIがCGで家具作成しており、実際の現地に家具は設置されておりません。また、販売価格に家具、小物等は含まれておりません。
    • ■外観■東急東横線沿線の閑静な住宅街に位置したスタイリッシュな2階建てデザイナーズハウス、ペニンシュラキッチンを採用し解放感のあるLDKです。
    • ■カウンター■本画像はAIがCGで家具作成しており、実際の現地に家具は設置されておりません。また、販売価格に家具、小物等は含まれておりません。
    • ■寝室■本画像はAIがCGで家具作成しており、実際の現地に家具は設置されておりません。また、販売価格に家具、小物等は含まれておりません。
    お気に入りに追加 この物件の資料請求無料 見学予約する無料

    ※LIFULL HOME'Sの資料請求ページに移動します

    販売スケジュール

    販売中

    販売概要

    販売戸数 1戸 最多価格帯 万円台
    販売価格 5780万円
    土地面積 106.3m2<私道負担面積2.02m2
    建物面積 71.83m2
    建物状況 - 建物現況 新規分譲
    土地状況 - 最適用途 -
    建築条件備考 - 構造・工法 -
    間取り 3LDK 建物階 木造 2階建 
    建ぺい率 / 容積率 建蔽率50% 容積率100%
    接道
    南東4m 公道
    駐車場・車庫
    • 1台
    完成時期
    • 2026年03月
    引渡し可能時期
    • 即入居可
    その他諸費用 -
    こだわり条件
    • 見学可能
    • 浴室乾燥機
    • 浴室暖房
    • 食器洗い乾燥機
    • TVモニタ付インターホン
    • 低層住宅地
    • 南道路
    • 即入居可
    • オンライン相談可
    • 駐車場あり
    備考
    • 物件種目:戸建
    • 主たる設備概要:都市ガス/公営水道/公共下水
    • 国土法:届出不要
    • 建築確認番号:第2025SBC-確01178H号
    • 売主:-
    • 都市計画:市街化区域
    • 備考欄:景観法による規制有、宅地造成工事規制区域、高度地区、準防火地域、高さ限度有、敷地面積最低限度有、日影制限有、不整形地、敷地内段差有、緑化地域、敷地面積105.87m2のうち私道部分2.01m2含む、建築基準法第22条区域、土砂災害警戒区域

      ●現地見学時のタイムスケジュール
      お客様のご希望に合わせた所要時間でご対応いたします。なお、弊社で対応できる無料サービスは下記の通りです。
      問合せ時に「時間がないので現地見学のみで」や「現地見学とライフプランのみ希望」など、お気軽に申し付け下さい。
      (1)問合せ物件の見学:所要時間は30分程度
      (2)周辺販売中物件の見学:所要時間は1物件ごとに20~30分程度
      (3)周辺環境(スーパー、駅までの道のり)のご案内:所要時間20分程度
      (4)住宅ローン12銀行比較パッケージ(弊社窓口で、各銀行の審査を一括で行います)所要時間:30分程度
      (5)ライフプランシュミレーション(一生涯のお金の計算書を無料で作成します)所要時間:1時間程度

      ●FP住宅相談ネットワークとは:ファイナンシャルプランナーが経営する住宅販売会社です。あんしんマイホームはそのグループの川崎相談窓口です。いずれも地元密着体制で未公開物件を数多く取扱いしているのが特徴です。

      ●その他、無料サポートキャンペーン中!
      (1)はじめの一歩セミナー:「探し始めの方」や「今すぐではないけど、いずれ探そうと思っている方」向けの、住宅購入初心者セミナーです。毎月1回開催しています。

      (2)契約前の物件調査(気に入った物件が見つかったら申し付け下さい)
      不動産は契約後に返品はできません。住んでから後悔しないように、購入予定物件の周辺住民に聞き込み調査を行ってご報告致します。「近所トラブルが起きていないか」「変わった住人はいないか」「以前には何があったか」「水害やがけ崩れの履歴がないか」など、気になることは何でも無料で調査致します。プロフェッショナルとして後悔させない不動産取引をお約束いたします。
    関連サイト -

    全体概要

    所在地 神奈川県横浜市神奈川区白幡西町
    交通
    • 東急東横線「東白楽」駅 徒歩6分
    • JR京浜東北・根岸線「東神奈川」駅 徒歩11分
    • 京急本線「神奈川新町」駅 徒歩13分
    土地の権利 所有権
    総戸数 1戸
    私道負担 - 用途地域 第一種低層住居専用地域
    地目 宅地 施工会社 -
    情報掲載開始日 2026年1月8日 情報更新日 2026年5月10日
    取引条件有効期限 2026年5月13日 次回更新予定日 2026年5月24日

    ローンシミュレーション

    頭金、借入期間、金利から毎月の住宅ローンお支払い額の目安を試算します。ご希望の条件に変更してご利用ください。

    物件価格の初期値は最低値を設定しております。実際にローン契約をする際は、詳細を不動産会社にご確認ください。

    万円
    万円
    %

    ※頭金や金利、借入期間によって支払う金額は変わります。

    ※物件購入時には、物件価格の他に諸費用がかかります。

    =
    月々のお支払い目安
    元金
    万円/月
    金利
    万円/月
    お支払い目安
    万円/月

    お問い合わせ

    ご覧いただいている物件の住宅ローンや実際にかかる諸費用、資金計画などのご相談ができます。

    不動産会社へのお問い合わせ

    あんしんマイホーム

    この物件のアピールポイント

    横浜駅からもほど近く、3路線利用可能で都内へのアクセスも良好、通勤・通学に便利な立地です。 周辺にはお買物施設なども充実しており、日常の生活にも困らない便利な立地です。 (株)あんしんマイホームでは当日の現地見学、モデルハウスのご案内も可能です!お気軽にお問合せください!

    この物件の価格

    5780万円

    • 会社名:株式会社あんしんマイホーム 営業3課
    • 住所:神奈川県川崎市高津区久本3丁目13番10号
    • 電話:044-820-2318
    • 取引態様:FP住宅相談ネットワーク(株)あんしんマイホーム / 仲介
    • 免許番号:神奈川県知事 (2) 第 27909 号
    • 不動産団体名:(公社)神奈川県宅地建物取引業協会
    • 売主:-
    • 売主免許番号:-
    • 関連サイト:-
    資料請求する無料 見学予約する無料

    ※LIFULL HOME'Sの資料請求ページに移動します

    他の物件も見てみる

    最近見た物件
    • 外観
    • 間取り

    • 完成後1年を経過している未入居物件が掲載されている場合があります。
    • 販売住戸が複数の物件は、全ての住戸に該当しない項目もあります。各問い合わせ先にご確認ください。
    • 「建築条件付き土地」とは、一定期間内(概ね3ヶ月程度)に特定の建設会社と建築請負契約を結ぶことを 条件にしている宅地のことです。
    • 建物の内容は、土地購入者の自由意思により決定可能で、土地売買契約後、 建築請負会社と購入した土地に建設する建物について協議することになります。
    • 期間内に建築請負契約が成立しなければ売買契約は白紙となり、支払済みの金銭はすべて返却されます。
    • 「建築条件付き土地」の価格には、建物価格は含まれません。
    • 「建築条件付き土地」の「建物プラン例」は、土地購入者の設計プランの一例であり、プランの採用可否は任意です。
    • 「土地(建築条件なし)」の「建物プラン例」に関して、そのプラン例は特定の建築請負会社によるもので、当該建築請負会社以外で建てた場合、同様のものが同価格で建てられるとは限りません。また、建築請負会社を特定するものではありません。
    • 消費税および地方消費税の対象となる場合は税込み価格が表示されています。
    • 物件の写真やイラスト、CGなどは実際と異なる場合があります。
    • 市区町村の合併などにより、地図が表示されない場合があります。ご了承ください。
    • お客様が入力する個人情報を含むお問い合わせデータは、LIFULL HOME'Sを経由して当該物件情報の取扱会社に転送されます。
    • 不動産購入の検討、契約にあたってはお客様ご自身が情報を確認し、各会社より十分な説明を受け判断してください。
    • 本ページの掲載内容は変更される場合があります。あらかじめご了承ください。
    ページトップへ