| 所在地 | 神奈川県茅ヶ崎市香川5丁目 |
|---|---|
| 交通 | |
| 価格 | 3780万円~4280万円 月々のお支払い目安
|

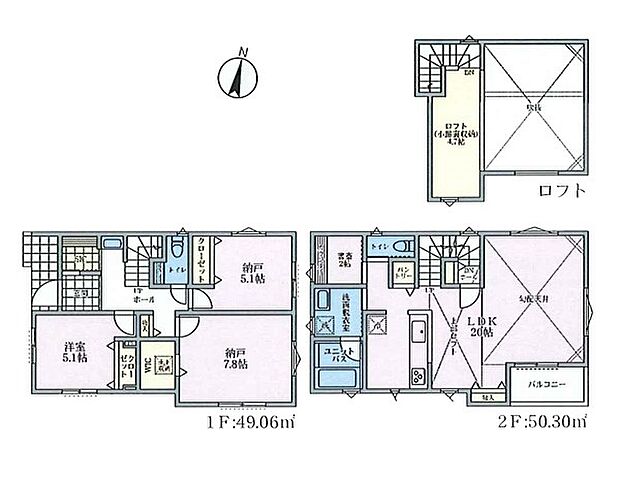
| 間取り | 1LDK+2S~2LDK+1S |
|---|---|
| 土地面積 | 100.42m2~104.62m2 |
| 建物面積 | 95.63m2~99.90m2 |
| 建物階 | 木造 2階建 |
| 完成時期 |
|










































先着順受付中/販売中
◇◆◇ご希望の場所まで「無料送迎」・「ナイト見学会」実施中!◇◆◇
| 開催日時 | 2025年12月01日~2026年02月28日 |
|---|---|
| 申込期間 | 2025年12月01日~2026年02月28日 |
| 開催場所 | 神奈川県茅ヶ崎市香川5丁目 |
| 交通 | JR相模線「香川」駅 徒歩5分 |
□見学はしたいけど、忙しくて・・・見に行く時間がない・・・□気になる物件の夜の環境も見てみたい!□車がない、電車での移動は大変・・・□運転に自信がないので、自分で運転していくのは少し不安・・・□小さな子供がいて、見にいくのが大変・・・
| 販売戸数 | 1戸 | 最多価格帯 | 4000万円台3戸 4200万円台1戸 3700万円台1戸 3900万円台3戸 他 |
|---|---|---|---|
| 販売価格 |
3780万円~4280万円 月々のお支払い目安
|
||
| 土地面積 | 100.42m2~104.62m2 | ||
| 建物面積 | 95.63m2~99.90m2 | ||
| 建物状況 | - | 建物現況 | 新規分譲 |
| 土地状況 | - | 最適用途 | - |
| 建築条件備考 | - | 構造・工法 | - |
| 間取り | 1LDK+2S~2LDK+1S | 建物階 | 木造 2階建 |
| 建ぺい率 / 容積率 | 建蔽率60% 容積率180% | ||
| 接道 |
|
||
| 駐車場・車庫 |
|
完成時期 |
|
| 引渡し可能時期 |
|
||
| その他諸費用 | - | ||
| こだわり条件 |
|
||
| 備考 |
|
||
| 関連サイト | - | ||
| 所在地 | 神奈川県茅ヶ崎市香川5丁目 | ||
|---|---|---|---|
| 交通 |
|
||
| 土地の権利 | 所有権 | ||
| 総戸数 | 11戸 | ||
| 私道負担 | - | 用途地域 | 第一種中高層住居専用地域 |
| 地目 | 宅地 | 施工会社 | - |
| 情報掲載開始日 | 2025年8月25日 | 情報更新日 | 2025年12月13日 |
| 取引条件有効期限 | 2025年12月15日 | 次回更新予定日 | 2025年12月27日 |
頭金、借入期間、金利から毎月の住宅ローンお支払い額の目安を試算します。ご希望の条件に変更してご利用ください。
物件価格の初期値は最低値を設定しております。実際にローン契約をする際は、詳細を不動産会社にご確認ください。
この物件の価格
3780万円~4280万円
この物件のアピールポイント
■物件の当日予約・当日見学できます◎どうぞお気軽にご連絡ください! ■エムイーPLUS町田はご相談だけでもOKです♪気になることは何でもお尋ねください! ■2024年グループ成約2416件の実績