【飯田グループ物件】ティアラ川越市砂 全1棟 ※新河岸」駅徒歩12分 TA

新築仲介一戸建て
所在地 埼玉県川越市大字砂
交通
  • 東武東上線「新河岸」駅 徒歩12分
  • 東武東上線「川越」駅 徒歩30分
  • 価格 2780万円
    資料請求する無料 見学予約する無料

    ※LIFULL HOME'Sの資料請求ページに移動します

    お気に入りに追加
    • 物件情報
    • 地図・周辺情報
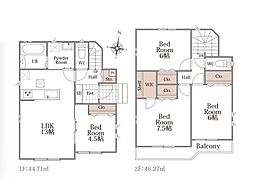
    • 間取り 3LDK
      土地面積 82.23m2
      建物面積 79.90m2
      建物階 木造2階建
      完成時期
      • 2026年5月予定
    • 【完成予想図(外観)】気になった物件すぐにご見学対応させていただきます♪平日・お仕事帰りなど、いつでもご案内可能です♪周辺環境と併せて、実際に現地をご確認ください♪
    • 【現地外観写真】住宅性能評価で耐震等級3(最高等級)を取得!お客様を守る大切な住宅だからこそ、第三者の検査を受けて安心して住んでいただける住宅を建てております。その頑丈さを、ぜひ現地にてご体感くださいませ。
    • 【前面道路含む現地写真】ひとたび扉を開けばそこに待っているのは上質な空間とマイホームでの新生活をイメージさせる優雅なひととき。「この家なら…」ではなく「ここに住みたい♪」と思う感動をお届けいたします。
    • 【全体区画図】東武東上線「新河岸」駅徒歩12分の毎日の通勤通学に大変便利な好立地♪開放的な住環境の第一種低層住居専用地域。周辺は高さ制限が設けられているため、空が広く感じられます。落ち着きある街並みが広がります。
    • 気になった物件すぐにご見学対応させていただきます♪平日・お仕事帰りなど、いつでもご案内可能です♪周辺環境と併せて、実際に現地をご確認ください♪
    • 【3LDK】食洗機付きシステムキッチンを配したワンフロアタイプの15帖超えLDK♪2階にはWICをご用意!洋服や小物類、お子様の思い出の物などの収納に♪Wバルコニーでは洗濯物やお布団もたっぷり干せます!
    • 【【省エネ性能ラベル】】こちらの物件はZEH水準を満たした、省エネ性能に優れた物件です。光熱費を抑えて暮らすことができるだけでなく、「熱の入りにくさ・逃げにくさ」という観点でも影響を受けにくい建物のため、長く快適にお過ごしいただけます♪
    • 【【TVモニター付きインターホン】】録画機能もあり、どのような人が何時に来訪されたのかが分かります。防犯上はもちろん、お届け物などの把握にも便利です。ライトが付いているので、夜間でも安心です。
    • 【【食器洗浄乾燥機】】忙しい奥様の味方、後片付けもラクラクなビルトイン食洗機付き。洗い終わった食器の水切りや乾燥としても便利です。
    • 【【浴室換気乾燥機】】雨の日や冬場のお洗濯に嬉しい装備。洗濯物を乾かすだけでなく、入浴後に換気機能で湿気を排出できるためカビの防止にもなります。
    • 【【ウォークインクローゼット】】お子様との思い出もたっぷりしまえるウォークインクローゼット。衣類だけでなく、鞄などの小物からスーツケースやレジャー用品などの大きな物までたっぷり収納出来ます。
    • 【【全居室フローリング】】カーペットや畳のようにほこりや汚れが繊維に入り込むことがないので、とても掃除やお手入れがしやすいです。子供たちの食べこぼしなどで床が汚れてしまった場合も手間がかかりません!
    • 【ベタ基礎は「鉄筋コンクリート造」】耐震性を発揮する鉄筋入りスラブー体基礎を採用。地面から基礎上端までの高さを400mm以上確保。地面からの湿気を防ぎ、不等沈下や地震時のねじれを防ぐ効果があり、白蟻に対する予防策としても有効です。
    • 【防湿措置「基礎パッキン」】基礎と土台の間に基礎パッキン(20mm厚)を入れることにより分離させ、土台からの湿気を基礎へ浸透するのを防ぎます。また、床下換気が可能です。
    • 【オリジナル柱脚・柱頭固定金物「TロックII」】「TロックII」は、ホールダウン金物の約2倍の強度があり、接合部の強度を増加させ、地震や風圧がかかった場合の柱の抜けを防ぎます。
    • コモディイイダ新河岸店(約1,000m)
    • 東武ストア新河岸店(約1,002m)
    • ファミリーマート新河岸駅前店(約893m)
    • 川越市立高階小学校(約1,322m)
    • 川越市立砂中学校(約650m)
    • 新河岸幼稚園(約535m)
    • ひとたび扉を開けばそこに待っているのは上質な空間とマイホームでの新生活をイメージさせる優雅なひととき。「この家なら…」ではなく「ここに住みたい♪」と思う感動をお届けいたします。
    • 東武東上線「新河岸」駅徒歩12分の毎日の通勤通学に大変便利な好立地♪開放的な住環境の第一種低層住居専用地域。周辺は高さ制限が設けられているため、空が広く感じられます。落ち着きある街並みが広がります。
    • 東武東上線「新河岸」駅徒歩12分
    • 住宅性能評価で耐震等級3(最高等級)を取得!お客様を守る大切な住宅だからこそ、第三者の検査を受けて安心して住んでいただける住宅を建てております。その頑丈さを、ぜひ現地にてご体感くださいませ。
    • (1号棟)、3LDK、土地面積82.23m2、建物面積79.9m2

    住みやすさ

    新河岸の住みやすさの採点分布

           
    ココが住みやすい!
    • ・川越より池袋寄りの駅の中で他の駅と比べて家賃が安いので負担が少なかった。 ・大宮、所沢、群馬、東京など何処へ行くにも…
    • 田舎すぎず都会すぎず、ほどよい住み心地で地元ということもあり、離れようと思ったことはありません。買い物にも交通にも特に困るこ…
    • ・小さい子供がいる家庭が多く、小児科を初めとして色々な病院があり安心して住むことができました。 ・スーパーや洋品店もあり便…
    ※住みやすさに関する評点は、単純平均ではなく当社独自の集計方法を加え算出しています。
    お気に入りに追加 この物件の資料請求無料 見学予約する無料

    ※LIFULL HOME'Sの資料請求ページに移動します

    販売スケジュール

    先着順受付中/販売中

    販売概要

    販売戸数 1戸 最多価格帯 -
    販売価格 2780万円
    土地面積 82.23m2
    建物面積 79.9m2
    建物状況 - 建物現況 新規分譲
    土地状況 - 最適用途 -
    建築条件備考 - 構造・工法 -
    間取り 3LDK 建物階 木造2階建
    建ぺい率 / 容積率 建ぺい率:50%、容積率:100%
    接道
    道路幅:4.2m、アスファルト舗装、南西側 4.2m 公道
    駐車場・車庫
    • 1台
    完成時期
    • 2026年5月予定
    引渡し可能時期
    • 2026年5月予定
    その他諸費用 -
    こだわり条件
    • 瑕疵担保付き
    • 見学可能
    • 浴室乾燥機
    • カウンターキッチン
    • 食器洗い乾燥機
    • 床下収納
    • ウォークインクローゼット
    • バリアフリー
    • TVモニタ付インターホン
    • 低層住宅地
    • オンライン相談可
    • 駐車場あり
    備考
    • 物件種目:戸建
    • 主たる設備概要:公営水道、本下水、集中プロパンガス
    • 建築確認番号:第R07SHC120915号
    • 備考欄:【その他制限事項】景観法による規制有、日影制限有、宅地造成および特定盛土等規制法


      ◎貴重なお時間の中で、ご希望の情報をご案内致します!
       お客様のご都合に合わせて「知りたい情報だけ」という短時間のご案内も可能です。
      事前にお申し付けください。

      ◎見学の際はお客様のご希望に合わせて3コース設けております。
       当日はデジカメやスマホでの写真撮影ももちろん可能です。ご自宅でのご検討の際にお役立てください。
      1)さくっと現地見学コース(所要時間:30分)
      お忙しいお客様向けです。物件のご案内(主に間取り)のみさせていただきます。
      2)じっくり見学コース(所要時間:1時間)
      物件の雰囲気だけではなく、設備などもしっかり確認されたいお客様向けです。
      間取りに加え、システムキッチンなど気になる設備もしっかりご案内いたします。
      3)納得見学コース(所要時間:2時間)
      「見学予約」の際は、上記希望の番号をご入力ください。
      「お電話やメール」の際も、番号をお伝えいただけると、ご案内がスムーズです。

      ◎物件の間取り、設備に加え、周辺環境もご案内いたします。
       現時点では、小学校、スーパー、図書館などご家族でご利用されることが予想される施設を車で回る予定です。「こんな施設があったら見学したい!」というようなご希望があればぜひご連絡ください。

      ◎初めての住宅購入で、何から始めればいいか分からない!
       そんなお客様に、経験豊富なスタッフがわかりやすく丁寧にご案内致します!
      小さなお子様連れでもゆったりと見学いただけますので、まずはお気軽にお問い合わせください。

      ◎案内員が常駐しておりませんので、見学の際は必ず事前にお問い合わせいただけますと幸いです。
    関連サイト -

    省エネ性能

    この物件の省エネ性能がわかる「省エネ性能ラベル」です。省エネ性能ラベルは2024年4月以降に建築確認申請した物件などで表示しています。

    ※「省エネ性能ラベル」は特定の住戸の性能を示し、全ての住戸の性能を示していない場合があります。

    省エネ性能ラベル
    エネルギー消費性能
    (削減率20%達成)
    エネルギー消費性能とは
    星マークの数が多いほどエネルギー消費性能が高いことを示しています。再エネ設備のない住宅は★0~★4の5段階評価、再エネ設備がある住宅は★0~★6の7段階評価となります。
    断熱性能
    5段階 / 7段階
    断熱性能とは
    数値が高いほど断熱性能が高いことを示しています。「熱の逃げやすさ」と「日射熱の入りやすさ」の2つの点で7段階で評価しています。
    目安光熱費
    - /年
    目安光熱費とは
    一年間にかかる光熱費の目安額です。住宅の省エネ性能と全国一律の燃料等の単価を用いて、一定の条件下で自動算出したもので、実際にかかる光熱費とは異なります。

    全体概要

    所在地 埼玉県川越市大字砂
    交通
    • 東武東上線「新河岸」駅 徒歩12分
    • 東武東上線「川越」駅 徒歩30分
    • JR川越線「南古谷」駅 車2.8km
    土地の権利 所有権
    総戸数 1戸
    私道負担 - 用途地域 第一種低層住居専用地域
    地目 宅地 施工会社 -
    情報掲載開始日 2025年12月9日 情報更新日 2026年3月23日
    取引条件有効期限 2026年12月8日 次回更新予定日 2026年4月6日

    ローンシミュレーション

    頭金、借入期間、金利から毎月の住宅ローンお支払い額の目安を試算します。ご希望の条件に変更してご利用ください。

    物件価格の初期値は最低値を設定しております。実際にローン契約をする際は、詳細を不動産会社にご確認ください。

    万円
    万円
    %

    ※頭金や金利、借入期間によって支払う金額は変わります。

    ※物件購入時には、物件価格の他に諸費用がかかります。

    =
    月々のお支払い目安
    元金
    万円/月
    金利
    万円/月
    お支払い目安
    万円/月

    お問い合わせ

    ご覧いただいている物件の住宅ローンや実際にかかる諸費用、資金計画などのご相談ができます。

    不動産会社へのお問い合わせ

    飯田グループホールディングス ホームトレードセンター(株)川越営業所

    この物件のアピールポイント

    <本日見学可>「新河岸」駅徒歩12分!通風採光良好! ■周辺環境のご案内  小学校徒歩17分 中学校徒歩9分 幼稚園徒歩7分  スーパー徒歩13分 コンビニ徒歩10分 ■家事が捗る食洗機・浴室乾燥機付き! ■収納充実、WIC付き

    この物件の価格

    2780万円

    • 会社名:飯田グループホールディングス ホームトレードセンター株式会社 川越営業所
    • 住所:埼玉県川越市鯨井新田6-1 第3今泉ビル1階
    • 電話:049-298-8280
    • 取引態様:飯田グループホールディングス ホームトレードセンター(株)川越営業所<仲介>
    • 免許番号:国土交通大臣 (3) 第 8044 号
    • 不動産団体名:(公社)埼玉県宅地建物取引業協会
    • 売主:-
    • 売主免許番号:-
    • 関連サイト:-
    資料請求する無料 見学予約する無料

    ※LIFULL HOME'Sの資料請求ページに移動します

    他の物件も見てみる

    条件が似た物件
    • 外観
    • 間取り

    最近見た物件
    • 外観
    • 間取り

    • 完成後1年を経過している未入居物件が掲載されている場合があります。
    • 販売住戸が複数の物件は、全ての住戸に該当しない項目もあります。各問い合わせ先にご確認ください。
    • 「建築条件付き土地」とは、一定期間内(概ね3ヶ月程度)に特定の建設会社と建築請負契約を結ぶことを 条件にしている宅地のことです。
    • 建物の内容は、土地購入者の自由意思により決定可能で、土地売買契約後、 建築請負会社と購入した土地に建設する建物について協議することになります。
    • 期間内に建築請負契約が成立しなければ売買契約は白紙となり、支払済みの金銭はすべて返却されます。
    • 「建築条件付き土地」の価格には、建物価格は含まれません。
    • 「建築条件付き土地」の「建物プラン例」は、土地購入者の設計プランの一例であり、プランの採用可否は任意です。
    • 「土地(建築条件なし)」の「建物プラン例」に関して、そのプラン例は特定の建築請負会社によるもので、当該建築請負会社以外で建てた場合、同様のものが同価格で建てられるとは限りません。また、建築請負会社を特定するものではありません。
    • 消費税および地方消費税の対象となる場合は税込み価格が表示されています。
    • 物件の写真やイラスト、CGなどは実際と異なる場合があります。
    • 市区町村の合併などにより、地図が表示されない場合があります。ご了承ください。
    • お客様が入力する個人情報を含むお問い合わせデータは、LIFULL HOME'Sを経由して当該物件情報の取扱会社に転送されます。
    • 不動産購入の検討、契約にあたってはお客様ご自身が情報を確認し、各会社より十分な説明を受け判断してください。
    • 本ページの掲載内容は変更される場合があります。あらかじめご了承ください。
    ページトップへ