| 所在地 | 静岡県静岡市駿河区南八幡町402番11他 |
|---|---|
| 交通 | |
| 価格 | 6,390万円~6,590万円 月々のお支払い目安
|

| 間取り | 3LDK(D号地、H号地) |
|---|---|
| 土地面積 | 123.43m2~124.55m2 |
| 建物面積 | 97.96m2~101.63m2 |
| 建物階 | 軽量鉄骨2階建(2戸) |
| 完成時期 |
|
























![[内観写真]](https://image1.homes.jp/smallimg/image.php?file=%2Fdata%2F1700013%2Fsale%2Fimage%2F0016233-2.jpg&width=620)
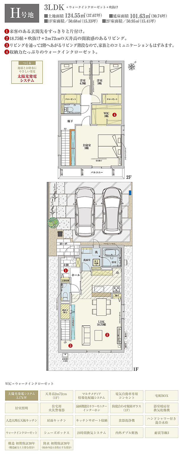
![[プラン図]※図面に基づいて描いているのでプラン及び外構・植栽については、実際とは多少異なる場合があります。また、車・自転車・家具・家電・備品等は販売価格に含まれません。](https://image4.homes.jp/smallimg/image.php?file=%2Fdata%2F1700013%2Fsale%2Fimage%2F0016233-3.jpg&width=620)

先着順申込受付中
| 販売戸数 | 2戸 | 最多価格帯 | 6,000万円台 2戸 ※1,000万円単位 |
|---|---|---|---|
| 販売価格 |
6,390万円~6,590万円 月々のお支払い目安
|
||
| 土地面積 | 123.43m2 私道負担あり 77m2のうち、6分の1の負担持分(D号地)、124.55m2 私道負担なし(H号地) | ||
| 建物面積 | 97.96m2(D号地)、101.63m2(H号地) | ||
| 建物状況 | - | 建物現況 | 分譲中 |
| 土地状況 | - | 最適用途 | - |
| 建築条件備考 | - | 構造・工法 | - |
| 間取り | 3LDK(D号地、H号地) | 建物階 | 軽量鉄骨2階建(2戸) |
| 建ぺい率 / 容積率 | - | ||
| 接道 |
|
||
| 駐車場・車庫 |
|
完成時期 |
|
| 引渡し可能時期 |
|
||
| その他諸費用 |
|
||
| こだわり条件 |
|
||
| 備考 |
|
||
| 関連サイト | - | ||
| 所在地 | 静岡県静岡市駿河区南八幡町402番11他 | ||
|---|---|---|---|
| 交通 |
|
||
| 土地の権利 | 所有権 | ||
| 総戸数 | 12戸 | ||
| 私道負担 | - | 用途地域 | 第一種中高層住居専用地域 |
| 地目 | - | 施工会社 | - |
| 情報掲載開始日 | 2025年12月9日 | 情報更新日 | 2026年2月8日 |
| 取引条件有効期限 | 2026年2月11日 | 次回更新予定日 | 随時 |
頭金、借入期間、金利から毎月の住宅ローンお支払い額の目安を試算します。ご希望の条件に変更してご利用ください。
物件価格の初期値は最低値を設定しております。実際にローン契約をする際は、詳細を不動産会社にご確認ください。
この物件のアピールポイント
南部小学校まで徒歩3分圏内。全12区画の閑静な住宅街です。 スーパー、ドラッグストア、公園、図書館、区役所が徒歩圏内に揃っています。 2026年春グランドオープン予定の「イオンスタイル静岡」(仮称)まで徒歩圏内。