| 所在地 | 神奈川県座間市緑ケ丘1丁目 |
|---|---|
| 交通 | |
| 価格 | 5,480万円 月々のお支払い目安
|

| 間取り | 5LDK |
|---|---|
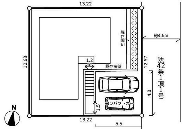
| 土地面積 | 167.66m2(公簿) |
| 建物面積 | 119.24m2 |
| 建物階 | 地上2階 |
| 完成時期 |
|












| 販売戸数 | 1戸 | 最多価格帯 | - |
|---|---|---|---|
| 販売価格 |
5,480万円 月々のお支払い目安
|
||
| 土地面積 | 167.66m2(公簿) | ||
| 建物面積 | 119.24m2 | ||
| 建物状況 | 新築 | 建物現況 | 未完成 |
| 土地状況 | - | 最適用途 | - |
| 建築条件備考 | - | 構造・工法 |
|
| 間取り | 5LDK 間取り内訳:リビングダイニングキッチン 21.2帖(1階)・洋室 5帖(1階)・洋室 7.4帖(2階)・洋室 5.6帖(2階)・洋室 6帖(2階)・洋室 5.6帖(2階) |
建物階 | 地上2階 |
| 建ぺい率 / 容積率 | 50% / 100% | ||
| 接道 |
|
||
| 駐車場・車庫 |
|
完成時期 |
|
| 引渡し可能時期 |
|
||
| その他諸費用 | - | ||
| こだわり条件 |
|
||
| 備考 |
|
||
| 関連サイト | - | ||
| 所在地 | 神奈川県座間市緑ケ丘1丁目 | ||
|---|---|---|---|
| 交通 |
|
||
| 土地の権利 | 所有権 | ||
| 総戸数 | - | ||
| 私道負担 | - | 用途地域 | 第一種低層住居専用地域 |
| 地目 | 宅地 | 施工会社 | - |
| 情報掲載開始日 | 2025年12月6日 | 情報更新日 | 2025年12月6日 |
| 取引条件有効期限 | 2025年12月20日 | 次回更新予定日 | - |
頭金、借入期間、金利から毎月の住宅ローンお支払い額の目安を試算します。ご希望の条件に変更してご利用ください。
物件価格の初期値は最低値を設定しております。実際にローン契約をする際は、詳細を不動産会社にご確認ください。
この物件のアピールポイント
LDK21帖以上!ゆとりの5LDK分譲住宅です♪制震ダンパーで安全設計♪設備と収納が整っています!
この物件の価格
5,480万円
1電話番号を入力する
0037-634-44426お問い合わせ先
シーエステート(株)2音声案内に従い、以下の番号を入力
お問い合わせ番号 61598-3190不動産会社のスタッフと
直接電話で話せます