| 所在地 | 熊本県熊本市西区田崎3丁目 |
|---|---|
| 交通 | |
| 価格 | 3288万円・3388万円 月々のお支払い目安
|

| 間取り | 4LDK+S |
|---|---|
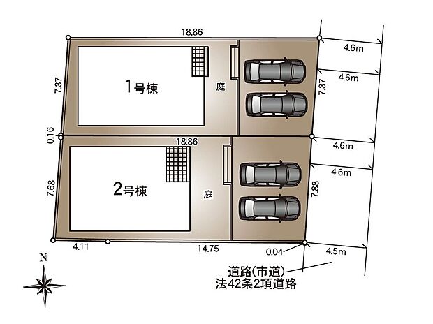
| 土地面積 | 138.69m2~148.69m2 |
| 建物面積 | 98.81m2~98.82m2 |
| 建物階 | 木造2階建て(軸組工法) |
| 完成時期 |
|

































新規分譲
| 販売戸数 | 2戸 | 最多価格帯 | 3200万円台(1戸) |
|---|---|---|---|
| 販売価格 |
3288万円・3388万円 月々のお支払い目安
|
||
| 土地面積 | 138.69m2・148.69m2(公簿) | ||
| 建物面積 | 98.81m2・98.82m2 | ||
| 建物状況 | - | 建物現況 | 新規分譲 |
| 土地状況 | - | 最適用途 | - |
| 建築条件備考 | - | 構造・工法 | - |
| 間取り | 4LDK+S | 建物階 | 木造2階建て(軸組工法) |
| 建ぺい率 / 容積率 | 建ぺい率:60% 容積率:1号棟185.6%、2号棟184.4% | ||
| 接道 |
|
||
| 駐車場・車庫 | - | 完成時期 |
|
| 引渡し可能時期 |
|
||
| その他諸費用 | - | ||
| こだわり条件 |
|
||
| 備考 |
|
||
| 関連サイト | - | ||
| 所在地 | 熊本県熊本市西区田崎3丁目 | ||
|---|---|---|---|
| 交通 |
|
||
| 土地の権利 | 所有権 | ||
| 総戸数 | 2戸 | ||
| 私道負担 | - | 用途地域 | 2種中高 |
| 地目 | 宅地 | 施工会社 | 株式会アーネストワン |
| 情報掲載開始日 | 2025年12月7日 | 情報更新日 | 2026年2月5日 |
| 取引条件有効期限 | 2026年12月31日 | 次回更新予定日 | 2026年2月18日 |
頭金、借入期間、金利から毎月の住宅ローンお支払い額の目安を試算します。ご希望の条件に変更してご利用ください。
物件価格の初期値は最低値を設定しております。実際にローン契約をする際は、詳細を不動産会社にご確認ください。
この物件の価格
3288万円・3388万円
この物件のアピールポイント
\本日案内可/営業直通090-7478-4335 お気軽に問合せください! ・「田崎橋」駅まで徒歩約14分!・駐車2台可能!・小中学校徒歩圏内!・生活環境、アクセス環境良好の立地! ・断熱・遮音に効果的な複層ガラス使用!・全室収納完備!・急な雨でも安心なインナーバルコニー!・耐震等級3、地震に強いお家!