小平市上水新町3丁目 新築戸建

新築仲介一戸建て
所在地 東京都小平市上水新町3丁目
交通
  • 西武国分寺線「鷹の台」駅まで 徒歩 10分
  • JR中央線「西国分寺」駅まで 徒歩 34分
  • 価格 3,990万円
    • 物件情報
    • 地図・周辺情報
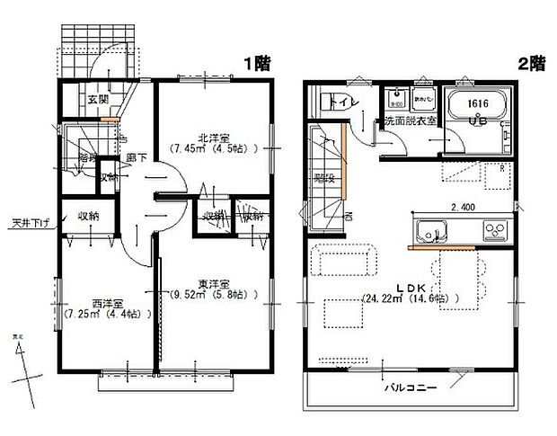
    • 間取り 3LDK
      土地面積 85.47m2(実測)
      建物面積 68.30m2
      建物階 地上2階
      完成時期
      • 2025年 4月
    • 周辺は住宅が建ち並ぶ閑静な住宅街です。
    • 現地のご見学予約もスタートしました。周辺で売りに出ている物件も沢山御座います。まとめてご見学ができますのでお気軽にお申しつけください。
    • 建物が完成しましたので室内のご見学予約スタート。当日のご見学予約も大歓迎です。お気軽にご連絡ください。他にもインターネットに掲載していない情報も沢山ありますので、比較で併せてご見学ができます。
    • 周辺のエリアで他にも沢山売りに出ている物件があります。インターネット掲載前の情報などもありますのでお気軽にお問合せください。まとめてご見学できます。
    • 建物が完成しましたので室内のご見学予約スタート。当日のご見学予約も大歓迎です。お気軽にご連絡ください。他にもインターネットに掲載していない情報も沢山ありますので、比較で併せてご見学ができます。
    • 本画像はCGで作成しており、実際に現地に家具は置かれておりません。また、価格に家具は含まれておりません。
    • 家族の集まるリビングは気持ちの良い自然光が差し込む団欒空間。室内のご見学予約も随時、受付中ですのでお気軽にお問合せください。
    • 家族が食事するダイニングスペースをキッチンから見渡せる設計に。お料理をしながら家族とのコミュニケーションが増えそうな予感。
    • カウンターキッチンならではの開放的な見通し、全体が見渡せることでご家族の団欒スペースもより明るく笑顔が溢れる空間となります。
    • お料理をしながらリビングの家族やゲストとの会話が楽しめるカウンタータイプのキッチン。毎日のお料理を楽しく快適に。
    • キッチンコンロスペースの近くには、空気の入れ替えが可能な開口部を設置!! お料理をする際には、換気扇を回しながら匂いが籠らない様に開放してお料理もお楽しみ頂けます。
    • 毎日の家事をサポートしてくれる食洗器も標準に装備。ちょっと嬉しい設備です
    • カウンターキッチンならではの開放的な見通し、全体が見渡せることでご家族の団欒スペースもより明るく笑顔が溢れる空間となります。
    • トイレにはウォシュレット機能を標準装備。
    • 豊富な収納スペースもこの物件の特長の一つ。各所に収納が完備されており、生活をスッキリと整えることができます。
    • 各所に効率的に配置された収納スペースがあり、日常のモノをすっきりと収納できます。
    • 洋室はモダンなデザインと機能性を備え、快適な生活空間に。明るい窓から差し込む自然光が広々とした空間をさらに明るく開放的に感じさせます。
    • スタイリッシュなデザインと快適な居住性を兼ね備えた洋室。広々とした空間は、自分らしいインテリアを楽しむことができるほか、リラックスした時間を過ごすことができそうです。
    • スマートなデザインと賢い収納が生活を快適にします。広々とした雰囲気を演出する工夫が施され、生活空間の魅力を引き出します。
    • 実際に室内をご見学頂くと生活のイメージが広がると思います。家具を置いたイメージや窓からの景色など。周辺で販売に出している物件も一緒にまとめてご見学頂き、比較する事もできます。
    • 季節の変化や天気の良い日には、バルコニーでの時間が心地よく、気分をリフレッシュさせることができます。
    • 玄関は家の第一印象を左右する重要な場所。ほどよい広さとスタイリッシュな色遣いが印象的です。
    • コンパクトながらも、使い勝手の良い玄関スペース。明るいデザインと、収納スペースを効果的に配置することで、使い勝手を最大限に引き出しています。
    • 本画像はCGで作成しており、実際に現地に家具は置かれておりません。また、価格に家具は含まれておりません。
    • お料理をしながらリビングの家族やゲストとの会話が楽しめるカウンタータイプのキッチン。毎日のお料理を楽しく快適に。
    • 一日の疲れを癒してくれるゆったりとしたバスルームです。
    • 使いやすいタイプの洗面化粧台のあるランドリースペース
    • 本画像はCGで作成しており、実際に現地に家具は置かれておりません。また、価格に家具は含まれておりません。
    • お家からの眺望です。開放感のある眺め。

    住みやすさ

    鷹の台の住みやすさの採点分布

         
    ココが住みやすい!
    • 玉川上水沿いにグリーンロードという緑道があり、静かに緑を眺める環境でした。 また駅周辺はお店は寂しい感じもしますが、住むに…
    • 自然に囲まれていて癒される。朝鳥の鳴き声で起きたりします。夏はヒグラシの鳴き声が聞こえてとても風流です。
    • ・学生街でありながら、昔からいる地元の人が気持ちのいい方が多くて治安のいい穏やかな街。 ・西武国分寺線は国分寺や所沢方面に…
    ※住みやすさに関する評点は、単純平均ではなく当社独自の集計方法を加え算出しています。

    販売概要

    販売戸数 1戸 最多価格帯 -
    販売価格 3,990万円
    土地面積 85.47m2(実測)
    建物面積 68.30m2
    建物状況 新築 建物現況 空家
    土地状況 - 最適用途 -
    建築条件備考 - 構造・工法
    • 木造
    間取り 3LDK 建物階 地上2階
    建ぺい率 / 容積率 40% / 80%
    接道
    接道状況:
    一方
    接道詳細:
    • 北 (私道 幅員 4.00m 接面 6.30m)
    駐車場・車庫
    • 駐車場料金:無料
    完成時期
    • 2025年 4月
    引渡し可能時期
    • 即時
    その他諸費用 -
    こだわり条件
    • コンロ三口
    • カウンターキッチン
    • 全居室収納
    • 即入居可
    • 低層住宅地
    • 駐車場あり
    備考
    • 物件種目:戸建
    • 主たる設備概要:-
    • 上水道:公営
    • 下水道:本下水
    • ガス・オール電化:都市ガス
    • セットバック:無
    • 国土法:不要
    • 法令上の制限その他:他、私道負担16.33平米の持分4分の1あり
    • 建築確認番号:第24UDI1T建03817号
    • 都市計画:市街化区域
    • 主要採光面:南
    • 地勢:平坦
    • 備考欄:管理番号:13250319
    関連サイト -

    全体概要

    所在地 東京都小平市上水新町3丁目
    交通
    • 西武国分寺線「鷹の台」駅まで 徒歩 10分
    • JR中央線「西国分寺」駅まで 徒歩 34分
    土地の権利 所有権
    総戸数 1戸
    私道負担 54m2私道負担割合:4分の1 用途地域 第一種低層住居専用地域
    地目 宅地 施工会社 -
    情報掲載開始日 2025年4月10日 情報更新日 2025年12月4日
    取引条件有効期限 2025年12月18日 次回更新予定日 -

    ローンシミュレーション

    頭金、借入期間、金利から毎月の住宅ローンお支払い額の目安を試算します。ご希望の条件に変更してご利用ください。

    物件価格の初期値は最低値を設定しております。実際にローン契約をする際は、詳細を不動産会社にご確認ください。

    万円
    万円
    %

    ※頭金や金利、借入期間によって支払う金額は変わります。

    ※物件購入時には、物件価格の他に諸費用がかかります。

    =
    月々のお支払い目安
    元金
    万円/月
    金利
    万円/月
    お支払い目安
    万円/月

    お問い合わせ

    ご覧いただいている物件の住宅ローンや実際にかかる諸費用、資金計画などのご相談ができます。

    不動産会社へのお問い合わせ

    株式会社エステート白馬 国分寺店

    この物件のアピールポイント

    ◎こころとカラダに、うれしい暮らし HAKUBAグループでは、土地や住まいの売買から設計、建築、 医療、介護そして保険や金融、税金対策、資産形成まで

    この物件の価格

    3,990万円

    • 会社名:株式会社エステート白馬 国分寺店
    • 住所:東京都国分寺市本町4丁目19-10 ビッググラッド国分寺1階
    • 電話:0120-846-898
    • 交通:JR中央線「国分寺」駅まで 徒歩 3分
    • 取引態様:媒介
    • 免許番号:国土交通大臣(6)第5817号
    • 不動産団体名:(公社)首都圏不動産公正取引協議会、(公社)全日本不動産協会埼玉県本部
    • 保証協会:(公社)不動産保証協会
    • 売主:-
    • 売主免許番号:-
    • 関連サイト:-

    お電話でのお問い合わせはこちら(取り扱い不動産会社に直接つながります)

    電話をかける(携帯電話・PHSでも可)

    1電話番号を入力する

    0037-634-08831

    お問い合わせ先

    株式会社エステート白馬 国分寺店

    2音声案内に従い、以下の番号を入力

    お問い合わせ番号 90462-3197

    不動産会社につながります

    不動産会社のスタッフと
    直接電話で話せます

    店舗スタッフ
    • お客様の電話番号は不動産会社に通知されません。
    • 光IP電話、及びIP電話からはご利用になれません。
    • 定休日や営業時間外にてお電話がつながらない場合は、お問い合わせフォームよりお問い合わせください。
    • 携帯電話からお問合せいただいた方には、ショートメッセージ(SMS)またはLINE通知メッセージによるお問い合わせ内容に関する通知を株式会社LIFULLよりお届けする場合があり、お客様の電話番号は株式会社LIFULLで一定期間保管されます。
    • 株式会社LIFULLの個人情報の取扱い方針に同意のうえ、お電話ください。
    • オーナー様・不動産会社様・現在ご入居中のお客様など、住まい探し以外のご相談はこちらからお問い合わせください。

    他の物件も見てみる

    条件が似た物件
    • 外観
    • 間取り

    最近見た物件
    • 外観
    • 間取り

    • 完成後1年を経過している未入居物件が掲載されている場合があります。
    • 販売住戸が複数の物件は、全ての住戸に該当しない項目もあります。各問い合わせ先にご確認ください。
    • 「建築条件付き土地」とは、一定期間内(概ね3ヶ月程度)に特定の建設会社と建築請負契約を結ぶことを 条件にしている宅地のことです。
    • 建物の内容は、土地購入者の自由意思により決定可能で、土地売買契約後、 建築請負会社と購入した土地に建設する建物について協議することになります。
    • 期間内に建築請負契約が成立しなければ売買契約は白紙となり、支払済みの金銭はすべて返却されます。
    • 「建築条件付き土地」の価格には、建物価格は含まれません。
    • 「建築条件付き土地」の「建物プラン例」は、土地購入者の設計プランの一例であり、プランの採用可否は任意です。
    • 「土地(建築条件なし)」の「建物プラン例」に関して、そのプラン例は特定の建築請負会社によるもので、当該建築請負会社以外で建てた場合、同様のものが同価格で建てられるとは限りません。また、建築請負会社を特定するものではありません。
    • 消費税および地方消費税の対象となる場合は税込み価格が表示されています。
    • 物件の写真やイラスト、CGなどは実際と異なる場合があります。
    • 市区町村の合併などにより、地図が表示されない場合があります。ご了承ください。
    • お客様が入力する個人情報を含むお問い合わせデータは、LIFULL HOME'Sを経由して当該物件情報の取扱会社に転送されます。
    • 不動産購入の検討、契約にあたってはお客様ご自身が情報を確認し、各会社より十分な説明を受け判断してください。
    • 本ページの掲載内容は変更される場合があります。あらかじめご了承ください。
    ページトップへ