| 所在地 | 神奈川県横浜市港北区鳥山町 |
|---|---|
| 交通 | |
| 価格 | 3,400万円 月々のお支払い目安
|

| 間取り | - |
|---|---|
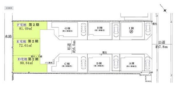
| 土地面積 | 72.61m2(実測) |
| 建物面積 | - |
| 建物階 | - |
| 完成時期 | - |























| 販売区画数 | 1区画 | 最多価格帯 | - |
|---|---|---|---|
| 販売価格 |
3,400万円 月々のお支払い目安
|
||
| 土地面積 | 72.61m2(実測) | ||
| 建物面積 | - | ||
| 建物状況 | - | 建物現況 | - |
| 土地状況 | 更地 | 最適用途 | - |
| 建築条件備考 | 建築条件付 | 構造・工法 | - |
| 間取り | - | 建物階 | - |
| 建ぺい率 / 容積率 | 60% / 200% | ||
| 接道 |
|
||
| 駐車場・車庫 | - | 完成時期 | - |
| 引渡し可能時期 |
|
||
| その他諸費用 | - | ||
| こだわり条件 | - | ||
| 備考 |
|
||
| 関連サイト | - | ||
| 所在地 | 神奈川県横浜市港北区鳥山町 | ||
|---|---|---|---|
| 交通 |
|
||
| 土地の権利 | 所有権 | ||
| 総区画数 | - | 開発面積 | - |
| 私道負担 | - | 用途地域 | 第一種住居地域 |
| 地目 | 宅地 | 施工会社 | - |
| 情報掲載開始日 | 2025年11月30日 | 情報更新日 | 2025年12月5日 |
| 取引条件有効期限 | 2025年12月19日 | 次回更新予定日 | - |
頭金、借入期間、金利から毎月の住宅ローンお支払い額の目安を試算します。ご希望の条件に変更してご利用ください。
物件価格の初期値は最低値を設定しております。実際にローン契約をする際は、詳細を不動産会社にご確認ください。
この物件のアピールポイント
■横浜線小机駅徒歩16分■参考プランございます■緑豊かな住環境■
この物件の価格
3,400万円
1電話番号を入力する
0037-634-00302お問い合わせ先
(株)日立ホーム2音声案内に従い、以下の番号を入力
お問い合わせ番号 12727-3193不動産会社のスタッフと
直接電話で話せます