さいたま桜区栄和

新築仲介一戸建て
所在地 埼玉県さいたま市桜区栄和1丁目
交通
  • JR埼京線「南与野」駅まで 徒歩 24分
  • JR京浜東北・根岸線「浦和」駅まで バス 20分 バス停「栄和」まで 徒歩 4分
  • 価格 3,990万円
    • 物件情報
    • 地図・周辺情報
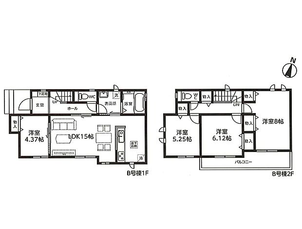
    • 間取り 4LDK
      土地面積 100.11m2(実測)
      建物面積 93.26m2
      建物階 地上2階
      完成時期
      • 2026年 3月
    • 【外観】家族の温かさと陽光の暖かさ、楽しい毎日と明るい未来を予感させる「空間が織り成すひとつ先の住み心地」を演出します。
    • 【前面道路】車の通行が少ないので、静かな住環境を維持することができます。
    • 【外観】家は一生のお買物。自分ならではの家族ならではの、家にしたい。書斎を設ける。子どものプレイングルームを設ける。趣味のオーディオルームを設置する。夢を追うオンリーワンの家です。
    • 【外観】家族の温かさと陽光の暖かさ、楽しい毎日と明るい未来を予感させる「空間が織り成すひとつ先の住み心地」を演出します。
    • 【間取-B号棟-】全棟4LDK
    • B号棟 図面と異なる場合は現況を優先
    • 【駐車場】カースペース2台可/駐輪スペース。広々カースペースです。自転車、バイクなども置き場に困りません。
    • 【TVモニター付インターホン】来訪者の様子を室内TVモニターでチェック。対応したくないセールスを断りやすく、子どもに留守番をさせるときも安心。不在時の来訪者を録画でき、犯罪抑止効果も期待でき…
    • 【24時間換気システム】家じゅうの空気が入れ替わるよう、ファンなどの器械を使って2時間に1回計画換気。24時間、常に新鮮な空気を維持するためのシステムです。
    • 【キッチン】ナチュラルな自然光の中での調理。会話が弾む対面型キッチン。お洒落な食器類を余裕で収納できるスペース。動きやすい女性目線のキッチン動線。これからはお料理をつくる時間が劇的に変わりま…
    • 【バルコニー】バルコニーから差し込む陽光・通風は、住環境・快適性と共に有り続ける貴重な「財産」です。
    • 【洋室】柔らかな陽光とフローリングの色味が調和した快適な空間。
    • 【寝室】充実した生活は伸びやかな居室空間から始まります。快適に・伸びやかに。心の潤いを求める方々へ。
    • 【子供部屋】お子様のお部屋にぴったりなクロークを備えたフローリング仕様の洋室です。
    • 小学校 350m さいたま市立栄和小学校(栄和小学校(昭和48年に開校。さいたま市の西部に位置し、交通と自然と教育の交差点にあります。北に埼玉大学、東に国道17号バイパス、西には荒川の沿岸、…
    • 【ダイニング】ダイニングテーブルを置いても十分な広さが確保されています。
    • 【ダイニング】忙しい朝でも家族揃って食事をしたいゆとりあるダイニングスペース。
    • 【ダイニングキッチン】会話でホッとコミュニケーションできるリビング。料理でホッとハピネスになるキッチンなど。人をホッとさせる最新設備・仕様を採用しています。
    • 【Living-dining-リビングダイニング】流行に左右されず、将来にわたって価値が継続する「上質」な佇まい。
    • 【洗面台】洗面所は小さなプライベートスペース。歯磨き、洗顔と毎日施す個人空間。
    • 【リビングダイニング】シンプルなデザインの家は風情がある。住む人のこだわりを感じる。外観も内装もいたってシンプル。居心地がよく、家事や趣味、子育てなどにも集中できる。家も人間も熟成するほどシ…
    • 【キッチン】 三口コンロで料理の幅を拡げてくれる使いやすいシステムキッチンを採用。洗い場も大きいので野菜や食器を洗ったりする際にも捗り、奥様の強い味方となってくれるはずです。
    • 【ダイニングキッチン】木の温もりがやさしいフローリング仕様。明るく広々としたダイニングはとても快適な空間です。
    • 【リビング】うららかな陽射しがどのお部屋にも降り注ぎますように、快適さを追求した間取設計。得難い立地環境での生活を恵みの豊かな永住の地へと変えてくれます。
    • 【リビング】インテリアショップで見掛けた「あの家具」も置ける、ゆったりとした空間。時に広さが上質な寛ぎの時間になる事も。
    • 【浴室】一日の疲れを癒してくれるお風呂空間。使いやすさと上質な質感を両立して、単なる習慣から特別な時間に変わるはず。
    • 【庭】お庭があることで開放感が違います。建物の内部に光や風などを採り入れやすくなり住居環境がより良好になります。また多目的にご利用できます。

    住みやすさ

    南与野の住みやすさの採点分布

       
    ココが住みやすい!
    • 生活していく上で、車を持っていなくても病院、スーパー、食事所など整っているため生活をしていく上でとても便利な町でした。
    • 閑静な住宅街で住み心地の良い街です。買い物へ行くにも大型スーパーが多くて、とても便利でした。銀行や郵便局、学校なども不便のな…
    • 駅も綺麗で改札出るとすぐ目の前にスーパーがあるので 仕事帰り寄りやすくて便利でした! 公園もあってご飯屋さんも多いので環…
    ※住みやすさに関する評点は、単純平均ではなく当社独自の集計方法を加え算出しています。

    販売概要

    販売戸数 1戸 最多価格帯 -
    販売価格 3,990万円
    土地面積 100.11m2(実測)
    建物面積 93.26m2
    建物状況 新築 建物現況 空家
    土地状況 - 最適用途 -
    建築条件備考 - 構造・工法
    • 木造
    間取り 4LDK 建物階 地上2階
    建ぺい率 / 容積率 60% / 200%
    接道
    接道状況:
    一方
    接道詳細:
    • 西 (公道 幅員 4.00m 接面 -)
    駐車場・車庫
    • 2台
    • 駐車場料金:無料
    完成時期
    • 2026年 3月
    引渡し可能時期
    • 即時
    その他諸費用 -
    こだわり条件
    • 床下収納
    • TVモニタ付インターホン
    • 即入居可
    • 駐車場2台以上
    • 小学校まで1km以内
    備考
    • 物件種目:戸建
    • 主たる設備概要:-
    • 上水道:公営
    • 下水道:本下水
    • ガス・オール電化:都市ガス
    • セットバック:無
    • 国土法:不要
    • 法令上の制限その他:宅地造成及び特定盛土等規制法、22条区域、農地法
    • 建築確認番号:第HPA-25-13795-1号
    • 都市計画:市街化区域
    • 最寄り小学校名:さいたま市立栄和小学校
    • 最寄り小学校までの距離:350m
    • 最寄り中学校名:さいたま市立土合中学校
    • 最寄り中学校までの距離:990m
    • 近隣の病院までの距離:1,640m
    • 備考欄: 【東宝ハウス浦和の特典】(1)お問合せで「住宅ローン講座」プレゼント(2)ご来店+アンケートでQUOカード最大5000円分プレゼント(3)ライフプランニング:未来カレンダーで将来の収入支出を視える化、不安を安心に(4)かけつけサポート:住まいトラブルに24時間365日対応(入居後3年間無料)(5)ClubOffプレミアム:国内外20万以上の施設を割引で何度でも(入居中無料) 04/10
    関連サイト -

    全体概要

    所在地 埼玉県さいたま市桜区栄和1丁目
    交通
    • JR埼京線「南与野」駅まで 徒歩 24分
    • JR京浜東北・根岸線「浦和」駅まで バス 20分 バス停「栄和」まで 徒歩 4分
    土地の権利 所有権
    総戸数 4戸
    私道負担 - 用途地域 第一種住居地域
    地目 宅地 施工会社 -
    情報掲載開始日 2025年11月30日 情報更新日 2026年5月11日
    取引条件有効期限 2026年5月24日 次回更新予定日 -

    ローンシミュレーション

    頭金、借入期間、金利から毎月の住宅ローンお支払い額の目安を試算します。ご希望の条件に変更してご利用ください。

    物件価格の初期値は最低値を設定しております。実際にローン契約をする際は、詳細を不動産会社にご確認ください。

    万円
    万円
    %

    ※頭金や金利、借入期間によって支払う金額は変わります。

    ※物件購入時には、物件価格の他に諸費用がかかります。

    =
    月々のお支払い目安
    元金
    万円/月
    金利
    万円/月
    お支払い目安
    万円/月

    お問い合わせ

    ご覧いただいている物件の住宅ローンや実際にかかる諸費用、資金計画などのご相談ができます。

    不動産会社へのお問い合わせ

    株式会社東宝ハウス浦和

    この物件のアピールポイント

    《当日見学可能な物件です!》〜■■見学予約は【0120-919-113】まで。お気軽にお問合せ下さい

    この物件の価格

    3,990万円

    • 会社名:株式会社東宝ハウス浦和
    • 住所:埼玉県さいたま市浦和区岸町6丁目1-5
    • 電話:0120-919-113
    • 交通:JR京浜東北・根岸線「浦和」駅まで 徒歩 10分
    • 取引態様:媒介
    • 免許番号:埼玉県知事(04)第021060号
    • 不動産団体名:(公社)首都圏不動産公正取引協議会、(公社)全日本不動産協会
    • 保証協会:(公社)不動産保証協会
    • 売主:-
    • 売主免許番号:-
    • 関連サイト:-

    お電話でのお問い合わせはこちら(取り扱い不動産会社に直接つながります)

    電話をかける(携帯電話・PHSでも可)

    1電話番号を入力する

    0037-634-40566

    お問い合わせ先

    株式会社東宝ハウス浦和

    2音声案内に従い、以下の番号を入力

    お問い合わせ番号 20418-3194

    不動産会社につながります

    不動産会社のスタッフと
    直接電話で話せます

    店舗スタッフ
    • お客様の電話番号は不動産会社に通知されません。
    • 光IP電話、及びIP電話からはご利用になれません。
    • 定休日や営業時間外にてお電話がつながらない場合は、お問い合わせフォームよりお問い合わせください。
    • 携帯電話からお問合せいただいた方には、ショートメッセージ(SMS)またはLINE通知メッセージによるお問い合わせ内容に関する通知を株式会社LIFULLよりお届けする場合があり、お客様の電話番号は株式会社LIFULLで一定期間保管されます。
    • 株式会社LIFULLの個人情報の取扱い方針に同意のうえ、お電話ください。
    • オーナー様・不動産会社様・現在ご入居中のお客様など、住まい探し以外のご相談はこちらからお問い合わせください。

    他の物件も見てみる

    • 完成後1年を経過している未入居物件が掲載されている場合があります。
    • 販売住戸が複数の物件は、全ての住戸に該当しない項目もあります。各問い合わせ先にご確認ください。
    • 「建築条件付き土地」とは、一定期間内(概ね3ヶ月程度)に特定の建設会社と建築請負契約を結ぶことを 条件にしている宅地のことです。
    • 建物の内容は、土地購入者の自由意思により決定可能で、土地売買契約後、 建築請負会社と購入した土地に建設する建物について協議することになります。
    • 期間内に建築請負契約が成立しなければ売買契約は白紙となり、支払済みの金銭はすべて返却されます。
    • 「建築条件付き土地」の価格には、建物価格は含まれません。
    • 「建築条件付き土地」の「建物プラン例」は、土地購入者の設計プランの一例であり、プランの採用可否は任意です。
    • 「土地(建築条件なし)」の「建物プラン例」に関して、そのプラン例は特定の建築請負会社によるもので、当該建築請負会社以外で建てた場合、同様のものが同価格で建てられるとは限りません。また、建築請負会社を特定するものではありません。
    • 消費税および地方消費税の対象となる場合は税込み価格が表示されています。
    • 物件の写真やイラスト、CGなどは実際と異なる場合があります。
    • 市区町村の合併などにより、地図が表示されない場合があります。ご了承ください。
    • お客様が入力する個人情報を含むお問い合わせデータは、LIFULL HOME'Sを経由して当該物件情報の取扱会社に転送されます。
    • 不動産購入の検討、契約にあたってはお客様ご自身が情報を確認し、各会社より十分な説明を受け判断してください。
    • 本ページの掲載内容は変更される場合があります。あらかじめご了承ください。
    ページトップへ