JR東海道本線「三島」駅まで バス 16分 バス停「西玉川」まで 徒歩 3分

新築仲介一戸建て
所在地 静岡県駿東郡清水町玉川97-10
交通
  • JR東海道本線「三島」駅まで バス 16分 バス停「西玉川」まで 徒歩 3分
  • 伊豆箱根鉄道駿豆線「三島広小路」駅まで 徒歩 22分
  • 価格 2,880万円
    • 物件情報
    • 地図・周辺情報
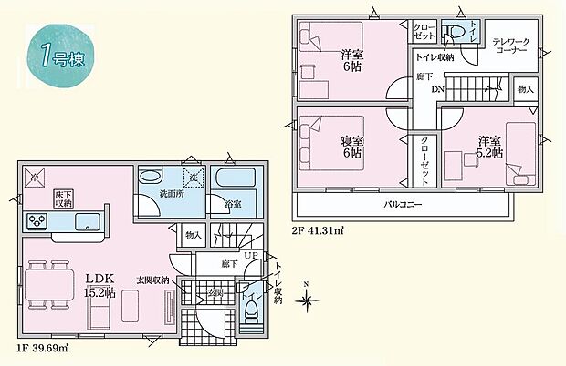
    • 間取り 3LDK
      土地面積 93.91m2(公簿)
      建物面積 81.00m2(壁芯)
      建物階 地上2階
      完成時期
      • 2026年 3月
    • 現地写真
    • 現地写真
    • 現地写真
    • 現地写真
    • 同社施工例
    • 間取り図
    • 区画図
    • 同社施工例
    • 同社施工例
    • 同社施工例
    • 同社施工例
    • 同社施工例
    • 同社施工例
    • 同社施工例
    • 同社施工例
    • 同社施工例
    • 同社施工例
    • 同社施工例
    • 同社施工例
    • 同社施工例
    • 同社施工例
    • 同社施工例
    • 同社施工例
    • 同社施工例
    • 同社施工例
    • 同社施工例
    • 同社施工例
    • 同社施工例
    • 同社施工例

    住みやすさ

    三島の住みやすさの採点分布

           
    ココが住みやすい!
    • ・ご高齢の方が多いが、人はみんな優しく、温和で住みやすい。のんびりな雰囲気が心地よい。 ・様々なスーパーマーケットがあり、…
    • 街のどこからも富士山が眺められ風光明媚。三島大社や楽寿園では参拝や散策もでき、源平川では子供と水遊びもできます。毎年夏の三島…
    • 観光地なので、お散歩するのが楽しい。おいしい店も多く、食べ歩きができる。人なつっこいので、道を聞いても嫌な顔をする人がいない…
    ※住みやすさに関する評点は、単純平均ではなく当社独自の集計方法を加え算出しています。

    販売概要

    販売戸数 1戸 最多価格帯 -
    販売価格 2,880万円
    土地面積 93.91m2(公簿)
    建物面積 81.00m2(壁芯)
    建物状況 新築 建物現況 未完成
    土地状況 - 最適用途 -
    建築条件備考 - 構造・工法
    • 木造
    間取り 3LDK(+テレワークコーナー)
    間取り内訳:リビングダイニングキッチン 15.2帖(1階)・洋室 6帖(2階)・洋室 6帖(2階)・洋室 5.2帖(2階)
    建物階 地上2階
    建ぺい率 / 容積率 60% / 200%
    接道
    接道状況:
    二方(角地)
    接道詳細:
    • 南 (公道 幅員 6.20m 接面 -)
    • 西 (公道 幅員 8.80m 接面 -)
    駐車場・車庫
    • 2台
    • 駐車場料金:無料
    完成時期
    • 2026年 3月
    引渡し可能時期
    • 相談
    その他諸費用 -
    こだわり条件
    • コンロ三口
    • 床下収納
    • TVモニタ付インターホン
    • バリアフリー
    • カウンターキッチン
    • 浴室乾燥機
    • 耐震構造
    • 制震構造
    • 全居室収納
    • 照明器具付
    • オートバス
    • 設計住宅性能評価付き
    • フラット35・S適合証明書
    • 建設住宅性能評価書(新築時)
    • BELS/省エネ基準適合認定建築物
    • 角地
    • 駐車場2台以上
    備考
    • 物件種目:戸建
    • 主たる設備概要:-
    • 上水道:公営
    • 下水道:本下水
    • ガス・オール電化:プロパンガス
    • セットバック:無
    • 建築確認番号:第R07SHC119986号
    • 都市計画:市街化区域
    • 主要採光面:南
    • 最寄り小学校名:清水町立清水小学校
    • 最寄り小学校までの距離:820m
    • 最寄り中学校名:清水町立清水中学校
    • 最寄り中学校までの距離:1,400m
    • 近隣の公園までの距離:930m
    • 近隣のスーパーマーケットまでの距離:600m
    • 近隣のドラッグストアまでの距離:240m
    • 近隣のコンビニまでの距離:350m
    • 近隣の銀行までの距離:540m
    • 備考欄:〜エアコン・OPキャンペーン実施中!!〜■「今すぐ見たい!」当日の内見にも迅速に対応いたします!■〇未完成物件でしたら、お近くの同施工モデルハウスへご案内いたします。〇営業時間外、早朝・夜間のご見学可能です♪■住宅ローンのことならホームパートナーズにお任せください!■〇転職して間もない、雇用形態が派遣社員だから…返済中の車のローンが残っている…等々、そんなお悩みもお気軽にご相談ください。
    関連サイト -

    省エネ性能

    この物件の省エネ性能がわかる「省エネ性能ラベル」です。省エネ性能ラベルは2024年4月以降に建築確認申請した物件などで表示しています。

    ※「省エネ性能ラベル」は特定の住戸の性能を示し、全ての住戸の性能を示していない場合があります。

    省エネ性能ラベル
    エネルギー消費性能
    ★★★★(削減率30%達成)
    エネルギー消費性能とは
    星マークの数が多いほどエネルギー消費性能が高いことを示しています。再エネ設備のない住宅は★0~★4の5段階評価、再エネ設備がある住宅は★0~★6の7段階評価となります。
    断熱性能
    5段階/7段階中
    断熱性能とは
    数値が高いほど断熱性能が高いことを示しています。「熱の逃げやすさ」と「日射熱の入りやすさ」の2つの点で7段階で評価しています。
    目安光熱費
    -/年
    目安光熱費とは
    一年間にかかる光熱費の目安額です。住宅の省エネ性能と全国一律の燃料等の単価を用いて、一定の条件下で自動算出したもので、実際にかかる光熱費とは異なります。

    全体概要

    所在地 静岡県駿東郡清水町玉川97-10
    交通
    • JR東海道本線「三島」駅まで バス 16分 バス停「西玉川」まで 徒歩 3分
    • 伊豆箱根鉄道駿豆線「三島広小路」駅まで 徒歩 22分
    土地の権利 所有権
    総戸数 -
    私道負担 - 用途地域 第一種住居地域
    地目 宅地 施工会社 -
    情報掲載開始日 2025年11月28日 情報更新日 2026年2月3日
    取引条件有効期限 2026年2月12日 次回更新予定日 -

    ローンシミュレーション

    頭金、借入期間、金利から毎月の住宅ローンお支払い額の目安を試算します。ご希望の条件に変更してご利用ください。

    物件価格の初期値は最低値を設定しております。実際にローン契約をする際は、詳細を不動産会社にご確認ください。

    万円
    万円
    %

    ※頭金や金利、借入期間によって支払う金額は変わります。

    ※物件購入時には、物件価格の他に諸費用がかかります。

    =
    月々のお支払い目安
    元金
    万円/月
    金利
    万円/月
    お支払い目安
    万円/月

    お問い合わせ

    ご覧いただいている物件の住宅ローンや実際にかかる諸費用、資金計画などのご相談ができます。

    不動産会社へのお問い合わせ

    株式会社ホームパートナーズ

    この物件のアピールポイント

    ≪サントムーンすぐ近く♪≫■エアコン・OPキャンペーン実施中☆■南西角地の為、日当たり良好♪テレワークコーナーあり♪各居室収納充実☆//◆清水小学校…徒歩9分◆清水中学校…徒歩18分

    この物件の価格

    2,880万円

    • 会社名:株式会社ホームパートナーズ
    • 住所:静岡県三島市北田町3-57 梅原ビル101
    • 電話:055-957-6011
    • 交通:伊豆箱根鉄道駿豆線「三島田町」駅まで 徒歩 1分
    • 取引態様:媒介
    • 免許番号:静岡県知事(01)第014622号
    • 不動産団体名:東海不動産公正取引協議会、(公社)全日本不動産協会静岡県本部
    • 保証協会:(公社)不動産保証協会
    • 売主:-
    • 売主免許番号:-
    • 関連サイト:-

    お電話でのお問い合わせはこちら(取り扱い不動産会社に直接つながります)

    電話をかける(携帯電話・PHSでも可)

    1電話番号を入力する

    0037-619-43453

    お問い合わせ先

    株式会社ホームパートナーズ

    2音声案内に従い、以下の番号を入力

    お問い合わせ番号 48101-3192

    不動産会社につながります

    不動産会社のスタッフと
    直接電話で話せます

    店舗スタッフ
    • お客様の電話番号は不動産会社に通知されません。
    • 光IP電話、及びIP電話からはご利用になれません。
    • 定休日や営業時間外にてお電話がつながらない場合は、お問い合わせフォームよりお問い合わせください。
    • 携帯電話からお問合せいただいた方には、ショートメッセージ(SMS)またはLINE通知メッセージによるお問い合わせ内容に関する通知を株式会社LIFULLよりお届けする場合があり、お客様の電話番号は株式会社LIFULLで一定期間保管されます。
    • 株式会社LIFULLの個人情報の取扱い方針に同意のうえ、お電話ください。
    • オーナー様・不動産会社様・現在ご入居中のお客様など、住まい探し以外のご相談はこちらからお問い合わせください。

    他の物件も見てみる

    • 完成後1年を経過している未入居物件が掲載されている場合があります。
    • 販売住戸が複数の物件は、全ての住戸に該当しない項目もあります。各問い合わせ先にご確認ください。
    • 「建築条件付き土地」とは、一定期間内(概ね3ヶ月程度)に特定の建設会社と建築請負契約を結ぶことを 条件にしている宅地のことです。
    • 建物の内容は、土地購入者の自由意思により決定可能で、土地売買契約後、 建築請負会社と購入した土地に建設する建物について協議することになります。
    • 期間内に建築請負契約が成立しなければ売買契約は白紙となり、支払済みの金銭はすべて返却されます。
    • 「建築条件付き土地」の価格には、建物価格は含まれません。
    • 「建築条件付き土地」の「建物プラン例」は、土地購入者の設計プランの一例であり、プランの採用可否は任意です。
    • 「土地(建築条件なし)」の「建物プラン例」に関して、そのプラン例は特定の建築請負会社によるもので、当該建築請負会社以外で建てた場合、同様のものが同価格で建てられるとは限りません。また、建築請負会社を特定するものではありません。
    • 消費税および地方消費税の対象となる場合は税込み価格が表示されています。
    • 物件の写真やイラスト、CGなどは実際と異なる場合があります。
    • 市区町村の合併などにより、地図が表示されない場合があります。ご了承ください。
    • お客様が入力する個人情報を含むお問い合わせデータは、LIFULL HOME'Sを経由して当該物件情報の取扱会社に転送されます。
    • 不動産購入の検討、契約にあたってはお客様ご自身が情報を確認し、各会社より十分な説明を受け判断してください。
    • 本ページの掲載内容は変更される場合があります。あらかじめご了承ください。
    ページトップへ