印西市高花5丁目 1号棟 新築戸建て

新築仲介一戸建て
所在地 千葉県印西市高花5丁目
交通
  • 北総線「千葉ニュータウン中央」駅まで バス 6分 バス停「高花団地入口」まで 徒歩 4分
  • 北総線「印西牧の原」駅まで 3.6km
  • 価格 3,180万円
    • 物件情報
    • 地図・周辺情報
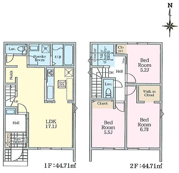
    • 間取り 3LDK
      土地面積 145.68m2(公簿)
      建物面積 89.42m2
      建物階 地上2階
      完成時期
      • 2025年 5月
    • 当日のご案内が可能です。連絡いただければ、ご見学ができますのでお気軽にお問い合わせください。お仕事帰りにもどうぞ!ご要望にあわせて、希望のお家を必ず探します!
    • 3LDKの魅力的な間取り!LDKはゆったりとした空間で、ご家族との団らん時間が、より一層充実したものになりますね!家族との仲が深まり、自然と笑顔が増えそうです!
    • 駐車スペースは2台分あります!セカンドカーはもちろん、バイクや自転車なども置き場所に困りません。
    • ウォークインクローゼット付きの広々6.7帖の洋室!優しい光が差し込む洋室は、朝の目覚めも気持ちが良さそうですね。おうち時間もゆったりと過ごすことができます。
    • 掃き出し窓がないお部屋は、お子様のお部屋としても安心です!収納スペースも充実しているので散らかったお部屋をサッと片付けられます!
    • 収納スペースがついています!居室をスッキリ整頓する事ができますね。家具を選ばないシンプルなデザインの為、家具を選ばずお気に入りの空間作りができそうですね。
    • 2面採光を確保した明るい室内は、風通しも良く、明るく大変居心地の良い空間となっております。リラックスして過ごせる心地の良いお部屋です!朝の目覚めがスッキリしますね!
    • シューズボックス付きなので、玄関が片付きお掃除がしやすいです!スッキリした玄関で戸を開けた瞬間、清潔感のある心地いい空間が出迎えてくれます。
    • ウォークインクローゼット付きです。たくさんのお洋服などを収納しておけそうですね!他にも扇風機や加湿器など季節物の大きな家電も収納できます。
    • 心地良いリビングは家族が自然と集まります。家族団欒の時間が増えそうです。ご家族と、より一層充実した時間を過ごせそうですね。明るく開放的な空間です。
    • 収納スペースが豊富で、調理スペースがスッキリと片付きひろ〜く活用できます!快適に作業ができます!毎日の料理が捗ります!
    • 三面鏡仕様の洗面所は、身だしなみがしやすい造り!裏は収納になっています。ドライヤーやお化粧道具を片付けられるので洗面台周りをスッキリと見せることが出来ます!
    • 千葉ニュータウン中央駅(北総鉄道 北総線)まで2500m
    • 印西市立高花小学校まで500m
    • 印西市立船穂中学校まで500m
    • セブンイレブン印西高花団地入口店まで462m
    • ファミリーマート千葉ニュータウン中央東店まで1951m
    • カスミ原山店まで1300m
    • ランドロームフードマーケットニュータウン南店まで1400m
    • くすりの福太郎印西内野店まで1227m
    • 学校法人アゼリー学園銀の鈴保育園まで300m
    • 階段は明るく手摺りもついています。お子様やご年配の方も安心してご利用頂けますね。
    • 家具はCGパースです。大切な家族が集まるからこそLDKにはこだわりたい。子供たちが元気に笑いながら走り回っている姿を見た時が「広い家にして良かった」と思う瞬間です。
    • 大人気の対面式システムキッチンを採用しています!ご家族のコミュニケーションが自然と増える設計です。お子様にも目が届くので嬉しいですね。収納力もあります!
    • 身なりを整える洗面所は、清潔感が大事です!水周りの清潔感のある雰囲気を演出!気持ちよくお使いいただけます。広々したスペースも嬉しいですね!
    • 落ち着きある大人の雰囲気のバスルームは、味が出ていてバスタイムが充実!お仕事頑張っているご褒美にお好みの匂いの入浴剤を入れて、楽しんでみてはいかがでしょうか?
    • 清潔感のある色味のお手洗いです!さわやかでスッキリする空間です!
    • カースペースは2台付き!セカンドカー持ちの方や急な来客時にも安心ですね。
    • 落ち着きある住宅街、気持ちの良い風が通り抜ける街並みです。晴れた日には青い空を見渡せる開放的な時間を楽しめます。気持ちの良い風が通り抜ける街並みです!
    • 前面道路6m!陽当り良好な立地です。車庫入れが苦手な方も安心ですね。

    住みやすさ

    千葉ニュータウン中央の住みやすさの採点分布

         
    ココが住みやすい!
    • 都内へのアクセスが電車1本で新橋まで約1時間程の立地。成田空港から羽田空港まで続く路線のため、旅行や出張なども便利な立地です…
    • 小さい子供を持つファミリーが多く、街が若々しい。 イオンをはじめてとして、商業施設が豊富にある。 道路の混雑がなく、空気…
    • 公園がたくさんあり緑も多く静かで住み易い。最近は、ショッピングセンターも多くでき、買い物も便利になった。
    ※住みやすさに関する評点は、単純平均ではなく当社独自の集計方法を加え算出しています。

    販売概要

    販売戸数 1戸 最多価格帯 -
    販売価格 3,180万円
    土地面積 145.68m2(公簿)
    建物面積 89.42m2
    建物状況 新築 建物現況 空家
    土地状況 - 最適用途 -
    建築条件備考 - 構造・工法
    • 木造
    間取り 3LDK
    間取り内訳:リビングダイニングキッチン 17.1帖(1階)・洋室 6.7帖(2階)・洋室 5.5帖(2階)・洋室 5.2帖(2階)
    建物階 地上2階
    建ぺい率 / 容積率 40% / 80%
    接道
    接道状況:
    一方
    接道詳細:
    • 南 (公道 幅員 6.00m 接面 -)
    駐車場・車庫
    • 2台
    • 駐車場料金:無料
    完成時期
    • 2025年 5月
    引渡し可能時期
    • 即時
    その他諸費用 -
    こだわり条件
    • コンロ三口
    • 床下収納
    • ウォークインクローゼット
    • TVモニタ付インターホン
    • バリアフリー
    • カウンターキッチン
    • 浴室乾燥機
    • 耐震構造
    • 全居室収納
    • オートバス
    • 設計住宅性能評価付き
    • フラット35・S適合証明書
    • 長期優良住宅
    • 建設住宅性能評価書(新築時)
    • 即入居可
    • 駐車場2台以上
    • 低層住宅地
    • 小学校まで1km以内
    備考
    • 物件種目:戸建
    • 主たる設備概要:-
    • 上水道:公営
    • 下水道:本下水
    • ガス・オール電化:都市ガス
    • 国土法:不要
    • 法令上の制限その他:防火地域、22条区域
    • 都市計画:市街化区域
    • 主要採光面:南
    • 最寄り小学校名:高花小学校
    • 最寄り小学校までの距離:500m
    • 最寄り中学校名:船穂中学校
    • 最寄り中学校までの距離:500m
    • その他施設名:千葉ニュータウン中央駅(北総鉄道 北総線)
    • その他施設までの距離:2,500m
    • 近隣のスーパーマーケットまでの距離:1,300m
    • 近隣のドラッグストアまでの距離:1,227m
    • 近隣のコンビニまでの距離:462m
    • 備考欄:[物件コード]185701-23570、【完成しました!本日内見可能です!】生活のしやすい3LDKの間取り。カースペースは嬉しい並列2台駐車可能。車の入れ替えをしなくて済むのが便利です!LDKは広々17帖以上キッチンは大人気対面式システムキッチン採用。浴室乾燥機付きで、雨の日のお洗濯も安心!玄関ホールには、帰宅後リビングに汚れや菌を持ち込まない手洗い場付き。
    関連サイト -

    全体概要

    所在地 千葉県印西市高花5丁目
    交通
    • 北総線「千葉ニュータウン中央」駅まで バス 6分 バス停「高花団地入口」まで 徒歩 4分
    • 北総線「印西牧の原」駅まで 3.6km
    土地の権利 所有権
    総戸数 -
    私道負担 - 用途地域 第一種低層住居専用地域
    地目 宅地 施工会社 -
    情報掲載開始日 2025年11月17日 情報更新日 2025年11月28日
    取引条件有効期限 2025年12月12日 次回更新予定日 -

    ローンシミュレーション

    頭金、借入期間、金利から毎月の住宅ローンお支払い額の目安を試算します。ご希望の条件に変更してご利用ください。

    物件価格の初期値は最低値を設定しております。実際にローン契約をする際は、詳細を不動産会社にご確認ください。

    万円
    万円
    %

    ※頭金や金利、借入期間によって支払う金額は変わります。

    ※物件購入時には、物件価格の他に諸費用がかかります。

    =
    月々のお支払い目安
    元金
    万円/月
    金利
    万円/月
    お支払い目安
    万円/月

    お問い合わせ

    ご覧いただいている物件の住宅ローンや実際にかかる諸費用、資金計画などのご相談ができます。

    不動産会社へのお問い合わせ

    ハウスモア(株)

    この物件のアピールポイント

    【完成しました!本日内見可能です!】北総鉄道線「千葉ニュータウン中央駅」バス乗車6分・停歩4分。

    この物件の価格

    3,180万円

    • 会社名:センチュリー21ハウスモア
    • 住所:茨城県取手市新町6丁目2-7
    • 電話:0297-86-7821
    • 交通:JR常磐線「取手」駅まで 徒歩 12分
    • 取引態様:媒介
    • 免許番号:茨城県知事(1)第7415号
    • 不動産団体名:(公社)全日本不動産協会、(公社)首都圏不動産公正取引協議会
    • 売主:-
    • 売主免許番号:-
    • 関連サイト:-

    お電話でのお問い合わせはこちら(取り扱い不動産会社に直接つながります)

    電話をかける(携帯電話・PHSでも可)

    1電話番号を入力する

    0037-634-04755

    お問い合わせ先

    ハウスモア(株)

    2音声案内に従い、以下の番号を入力

    お問い合わせ番号 16981-3197

    不動産会社につながります

    不動産会社のスタッフと
    直接電話で話せます

    店舗スタッフ
    • お客様の電話番号は不動産会社に通知されません。
    • 光IP電話、及びIP電話からはご利用になれません。
    • 定休日や営業時間外にてお電話がつながらない場合は、お問い合わせフォームよりお問い合わせください。
    • 携帯電話からお問合せいただいた方には、ショートメッセージ(SMS)またはLINE通知メッセージによるお問い合わせ内容に関する通知を株式会社LIFULLよりお届けする場合があり、お客様の電話番号は株式会社LIFULLで一定期間保管されます。
    • 株式会社LIFULLの個人情報の取扱い方針に同意のうえ、お電話ください。
    • オーナー様・不動産会社様・現在ご入居中のお客様など、住まい探し以外のご相談はこちらからお問い合わせください。

    他の物件も見てみる

    最近見た物件
    • 外観
    • 間取り

    • 完成後1年を経過している未入居物件が掲載されている場合があります。
    • 販売住戸が複数の物件は、全ての住戸に該当しない項目もあります。各問い合わせ先にご確認ください。
    • 「建築条件付き土地」とは、一定期間内(概ね3ヶ月程度)に特定の建設会社と建築請負契約を結ぶことを 条件にしている宅地のことです。
    • 建物の内容は、土地購入者の自由意思により決定可能で、土地売買契約後、 建築請負会社と購入した土地に建設する建物について協議することになります。
    • 期間内に建築請負契約が成立しなければ売買契約は白紙となり、支払済みの金銭はすべて返却されます。
    • 「建築条件付き土地」の価格には、建物価格は含まれません。
    • 「建築条件付き土地」の「建物プラン例」は、土地購入者の設計プランの一例であり、プランの採用可否は任意です。
    • 「土地(建築条件なし)」の「建物プラン例」に関して、そのプラン例は特定の建築請負会社によるもので、当該建築請負会社以外で建てた場合、同様のものが同価格で建てられるとは限りません。また、建築請負会社を特定するものではありません。
    • 消費税および地方消費税の対象となる場合は税込み価格が表示されています。
    • 物件の写真やイラスト、CGなどは実際と異なる場合があります。
    • 市区町村の合併などにより、地図が表示されない場合があります。ご了承ください。
    • お客様が入力する個人情報を含むお問い合わせデータは、LIFULL HOME'Sを経由して当該物件情報の取扱会社に転送されます。
    • 不動産購入の検討、契約にあたってはお客様ご自身が情報を確認し、各会社より十分な説明を受け判断してください。
    • 本ページの掲載内容は変更される場合があります。あらかじめご了承ください。
    ページトップへ